Особенности строительства дома на берегу реки
Строительство дома у водоема – какие могут возникнуть затруднения?
Такое вот соседство с водой может «вылиться» боком весной. Поэтому важно все тщательно взвесить и прибегнуть к услугам профессионалов, чтобы можно было с уверенностью говорить о своем доме как о «крепости».
Прежде всего, непосредственно сам выбор места под застройку должен осуществляться, когда уровень почвенных вод максимальный на данной местности. Стоит выяснить, насколько часто случаются такие вот «пики» разлива вод. К тому же, необходимо учитывать требования Водного кодекса, который и определяет размеры водоохранной зоны. Свой дом у реки можно возвести лишь в том случае, если будет оформлен сервитут на использование данного участка. Такая водоохранная зона может достигать 200 метров, при этом будущий владелец не имеет права определять «свой» фрагмент реки, а также строить ограждения у берега, которое бы препятствовало прямому попаданию к воде.
Непосредственно при создании проекта дома на берегу реки необходимо учитывать множество факторов, среди которых:
- повышенная влажность воздуха;
- близкий уровень залегания грунтовых вод;
- вероятность затопления при весенних разливах реки.
Все эти моменты влияют на выбор фундамента, технологии строительства дома на у водоема, материалов для возведения.
Зачастую такие вот береговые участки имеют неровную поверхность в виде уклона в стороны прибережной линии. Это может не только усложнить процесс подготовки строительной площадки, но и повлиять на тип основания для здания. Но стоит заметить, что именно такие вот свойства местности (большой уклон) довольно-таки привлекателен, ведь дом будет защищен от сезонных разливов, находясь на возвышенности.
Особенности строительства у реки
Геологическая обстановка на участке играет решающую роль при подборе основания под жилое строение. Без детальных исследований не добиться верных решений, что способно привести к неверной тактике и дальнейшему разрушению дома.
Специалисты «ИнноваСтрой» займутся всеми необходимыми работами, тщательно изучат земельный участок (рельеф, климат, определят уровень расположения грунтовых вод). На основании полученных данных будет осуществляться проектирование и возведение.

Строительство дома на берегу реки нужно производить на максимальной возвышенности. А в качестве дополнительной защиты сооружения необходимо на пути от водоема возвести препятствующие движению воды элементы. Это могут быть и такие, которые несут декоративную функцию (подпорные стены и пр.). Тип грунта на участке у реки также играет немаловажную роль. Часто в такой местности состав почвы неоднороден, грунтовые пласты могут располагаться не в определенной последовательности, а довольно хаотично. Здесь задерживается то, «что река намыла».
Даже если не привязываться конкретно к какому-то участку, можно сказать, что наибольшее доверие вызывает фундамент в виде вбитых свай. Он становится надежной опорой для дома, независимо от происходящих в почве процессов (проседание, пучение, изменение уровня вод). Такое основание достаточно глубоко фиксируется (опоры помещаются в грунт до тех пор, пока не обнаружат самый устойчивый и плотный слой), устойчиво к влиянию влаги, его сложнее сдвинуть, чем монолитную плиту.
Применение свайного фундамента в Москве избавляет от необходимости предварительно перед строительством выравнивать поверхность, что стоило бы не только больших усилий, но и временных, денежных затрат. Конечно, строительство на таком фундаменте ставит некие рамки касательно конструктивных решений: невозможно возводить тяжелые кирпичные, монолитные дома в несколько этажей. Но и на древесине в данном случае не стоит останавливаться, ведь из-за повышенной влажности могут ухудшиться эксплуатационные качества дома у реки.
Строим дом на берегу реки: установка свайного фундамента поэтапно
Устройство основания из ввинчиваемых свай отличается особой технологичностью. Если, к примеру, рассматривать столбчатый фундамент, для которого необходимо подготавливать ямы с откосами, опалубкой, то в свайном все четко:
- нужно пробурить скважину определенного диаметра;
- установить арматурные прутья;
- залить все бетоном.

Количество буронабивных свай определяется в зависимости от предполагаемой нагрузки, сами параметры опор связаны с особенностями полов, перегородок, кровли и т.д. Далее из рубероида подготавливаются трубы, соответствующие диаметру скважины в почве, при этом их длина должна составлять на 300 мм больше имеющегося отверстия.
Верхняя часть каждого из элементов должная быть немного толще, между собой они стягиваются специальной стальной проволокой, что и послужит той самой опалубкой. После того как все подготовлено, сваи осторожно помещаются в скважины.
Специалисты настоятельно рекомендуют обратить внимание на наличие воды в отверстии под трубы. Если там ее больше ¼ части, то перед заливкой бетонной смеси стоит тщательно ее откачать.
- Чтобы возвести стойкий, прочный фундамент, важно точно следовать технике подготовки бетонного раствора. В этой «бетонной массе» необходимо наличие так называемого «молочка». Если не будет таких вот труб из рубероида, эта жидкость быстро впитается в почву и продуманной по проекту прочности и устойчивости вам не получить.
- При условиях сильного промерзания грунта, процессы пучения будут значительно влиять на стенки свай. Труба в данном случае становится еще одним препятствием на пути у подобных процессов.
Для арматурного каркаса будет достаточно и 3-х прутьев, которые скреплены поперечными с шагом 500 мм. Необходимо позаботиться о надежном соединении ростверков и остальных столбов между собой. Если грунты пучинистые, то размещать ростверк нужно таким образом, чтобы он «висел» над поверхностью грунта где-то на 150 мм. Это связано с тем, что во влажной местности пучение может влиять на подъем грунта до 15 см.
Когда каркас установлен, осуществляется заливка бетона по слоям с попеременным уплотнением при помощи вибраторов. При сборке всех элементов ростверка необходимо акцентировать внимание на их фиксации на оголовке свай. Для этого первоначально заполняется бетоном арматурный элемент в виде буквы «Т», после чего горизонтально укладывается такой же (его длина должна быть одинаковой с шириной свай) на оголовки. Когда установка завершена, все швы стоит заполнять мелкозернистым бетоном либо цементным раствором. Все отметки верхних частей ростверка должны тщательно проверяться посредством нивелира или же обычного водяного уровня.


Особенности строительства у реки на ровной поверхности
Когда берег ровный, подход к строительству в принципе не сильно отличается от привычной тактики планирования возведения жилого сооружения.
- уровень прохождения грунтовых вод;
- особенности промерзания почвы;
- подтапливаемость имеющегося участка;
- обнаруженный тип почвы.
В данном случае также стоит узнать о весенних разливах реки, поинтересоваться у соседей об особенностях имеющейся у них дренажной системы. В строительство фундамента коттеджа будет выглядеть так:
- Если вы решили возводить каркасное сооружение, тогда для строительства дома на берегу реки на ровном участке можно применять ленточное либо же столбчатое основание.
- Для кирпичного, бетонного и дома из камня безопасной и устойчивой опорой станет лишь монолитный фундамент.
- Если планируется возведение коттеджа в 2 и более этажа, здесь подойдут только винтовые или забивные сваи.
Окончательное влияние на решения специалистов окажут результаты исследований на местности у водоема – заложение подошвы основания не должно быть ниже уровня УГВ и промерзания почвы. В таком случае внимание на мелкозаглубленные типы ленточного и монолитного фундаментов.
Проектирование домов на сложных участках от профессионалов
При проектировании стоит учесть значительное снижение температуры возле воды в холодное время года, а также частые ветра. Специалисты «ИнноваСтрой», создавая индивидуальные проекты под ключ, уделяют должное внимание тепло- и влагоизоляции жилого сооружения.
Крыльцо у дома на сваях располагается достаточно высоко над уровнем земли, что достаточно непрактично и неэстетично. Здесь, к примеру, лучше обратить внимание на обустройство широкой веранды, которая бы была промежуточным элементом между низким крыльцом и непосредственно входом в здание.
Зато касательно обустройства ничего не может быть лучше. Прибережная зона открывает широкие возможности для облагораживания придомовой территории, создания небольшого пляжного участка, комфортного места для отдыха семьей.

Вы можете с уверенностью заказать строительство дома на проблемном участке, при этом будучи уверенными в высоком качестве предоставляемых услуг, адекватных ценах, рентабельных решениях, 100% быстро полученных разрешениях от ответственных служб на проведение строительных работ.
Получить красивое, надежное, комфортное жилье можно выгодно и без бюрократических заминок!
Время звонить и спрашивать у специалистов «ИнноваСтрой».

innstroy.ru
Дом на берегу реки
В живописном лесу на берегу реки возведён великолепный дом в три этажа, являющий собой уникальный образец современного дизайна. Вся внешняя облицовка фасада выполнена из дерева, по цвету близкого к осенней листве.

Фундамент дома обложен натуральным камнем. Им же декорированы отдельные части фасада. Всё это придаёт дому монументальный вид, делает его солидным, строгим и при этом удивительно гармоничным.

Бассейн как бы нависает над рекой, протекающей в низине. Как, должно быть, жить рядом с двумя водными объектами сразу! И пусть один из них — рукотворный, зато второй — природный, величественный и невыразимо прекрасный…

Второй и третий этажи утопают в зелени деревьев, а из их окон открывается потрясающий вид.

Веранды дома также преимущественно состоят из дерева. Здесь достаточно места даже для того, чтобы устроить многолюдную вечеринку.

Внутреннее оформление дома вторит внешнему: камень и дерево — основные материалы в структуре интерьера, главные носители фактуры. Деревянные полы и потолки прекрасно «ладят» со стенами, облицованными натуральным камнем.

Порой не сразу можно понять, какую часть интерьера видишь. Очередную стену или скрытый многофункциональный модуль?

Внутри может оказаться всё что угодно: телевизор, книжные полки или камин.

С наступлением сумерек можно выключить всё освещение и наблюдать смену дня и ночи через панорамные окна.

Второй этаж очень необычен: он разделён на несколько разных уровней. По всему периметру возведены прозрачные стены, есть выход на большую террасу.

Третий этаж — обитель тишины и спокойствия. Здесь обустроены зоны отдыха и спальни.

В этой комнате есть отдельный небольшой балкон. Солнечные лучи беспрепятственно проникают внутрь через большие окна и двери.

Гостевые спальни обставлены удобными кроватями и тумбочками.

Если остаётся ночевать не супружеская пара, а, например, подруги, то кровати вполне можно раздвинуть и устроить отдельные спальные места.

Дизайн ванной комнаты тоже подчинён «деревянной деспотии»: её белизну обильно разбавляет мебель из натуральной древесины. Светильники подобраны не случайным образом: их свет отражается от гладких поверхностей сантехнических приспособлений, создавая ажурную рябь, напоминающую солнечные блики на воде.

Табуреты, стилизованные под деревянные колоды, могут стать креативными украшениями интерьера ванной комнаты.

Пасмурная погода не повод отказаться от созерцания красот природы. Ведь в доме есть восхитительная крытая веранда!

Попасть внутрь дома можно с разных сторон благодаря наличию нескольких входов.

Когда наступает ночь и дом освещается изнутри, деревянная облицовка смотрится особенно элегантно. Подсветка бассейна придаёт ландшафту некоторый аристократизм. Как, должно быть, приятно отдыхать здесь!

designerdreamhomes.ru
Дом на берегу реки в Швеции (25 фото) |
Летний домик в Швеции спроектировал Buster Delin, основатель Delin Arkitektkontor. Место для его возведения было выбрано не случайно. Одной из предпосылок для строительства на участке, расположенном на берегу реки, был гранитный фундамент, оставшийся от фабрики по производству керамических печей, который стал основной базой для дома. Он построен с использованием местных природных материалов и является прекрасным образцом экологического жилья. Для реализации проекта потребовалось 7 лет.
Уединенное расположение жилья сделало возможным использование стеклянных стен с трех сторон, что делает открытыми для природы холл, кухню и гостиную. Что не скажешь о спальной и ванной комнате, они защищены от посторонних глаз кирпичными стенами. Дом рассчитан для проживания семьи из двух взрослых и четырех детей. За счет того, что кухня находится в холле, удалось создать просторную гостиную, из которой открывается прекрасный вид на окружающий ландшафт. С помощью занавесок, изготовленных из местного льна, можно разделить пространство на две функциональные зоны или же придать конфиденциальности в период отсутствия хозяев. Когда наступают сумерки, темный потолок, который выходит во внутренний дворик, растворяется в ночном небе и дает ощущение открытого неба.






















Готовы для более удивительных дизайнерских идей? Смотрите ниже!
poshouse.ru
: Строительство дома :: BlogStroiki
Вопрос: Какое допустимое расстояние от реки до жилого дома?
Ответ: У вас дом уже есть на берегу реки или вы хотите его только строить? Существующим водным кодексом Российской Федерации определены водоохранные зоны и прибрежные защитные полосы (статья 65) которым и установлена ширина водоохранной зоны всех ручьев и рек в зависимости от расстояния их от истока. А именно: 0-10 км ширина водоохранной зоны составляет пятьдесят метров, 10-50 км-сто метров, от 50 км и более –двести метров.
Для рек и ручьев имеющих протяженность менее десяти километров от истоков до устья водоохранная зона такая же как и прибрежная защитная полоса -15-100 метров. Установлен также радиус водоохраной зоны для истоков рек или ручьев и составляет он 50 метров.
Поэтому если вам выделили земельный участок или только решаете этот вопрос уточните у местных властей какая земля у вас, как часто река выходит из берегов, на каких грунтах будете строить дом-от этого зависит и этажность дома и расстояние до реки и конструкция фундамента .
В водоохранной зоне допускается строительство индивидуального жилья с обязательным оформлением сервитута. Очень мало от вас информации: у вас есть на руках акт обследования геологии грунта на вашем участке, участок вам выделили под ИЖС или под дачу, к каким категориям земель отнесен ваш участок. Рядом есть жилые строения или сельское поселение, участок выделен в собственность или на правах аренды? Какие коммуникации-газ,водопровод и др. подведены к участку и во сколько вам обойдутся работы по их подведению. Если рядом есть соседи или в этом же регионе узнайте у них каким образом они получили разрешение на строительство жилого дома в водоохранной зоне . Сравнивая полученную информацию из всех источников вы найдете золотую середину и примите правильное решение.
Не имея этой информации трудно судить о складывающейся у вас ситуации. Так как в большей степени на решение вашего вопроса будет иметь не федеральный закон о водоохранных зонах, а решения органов местного самоуправления на территории которого и расположен ваш участок.
Отталкиваться надо от Водного кодекса РФ, а дополнительные правила застройки узнайте в местном управлении архитектуры и градостроительства. Удачи. Если вам или вашей компании срочно необходим вывоз чистого грунта ,то специалисты советуют обращаться в специализированные фирмы,которые в кротчайший срок освободят стройплощадку от лишнего грунта.
.
blogstroiki.ru
плюсы и минусы, особенности местности, фото
Как иногда хочется половить рыбу прямо из окошка своего дома! Домик с участком у реки или на берегу озера — такой желанный и такой недоступный вид недвижимости. Но если повезло и недвижимость у реки принадлежит вам по праву, приготовьтесь к ее защите. У вас в собственности объект повышенного внимания со стороны правовых, экологических и общественных организаций, потому что река или озеро принадлежит не только вам.

Мы с тобой два берега
Прежде чем купить участок, необходимо выбрать из множества предложений участков у реки или озера наиболее подходящее. При этом непременно учесть особенности берега:
- Если склон его находится на южной стороне и берег оголен или окружен редкой растительностью, то при летней жаре находиться под палящим солнцем может быть не всегда комфортно. Подобный участок на берегу реки потребует высадки растений, устойчивых к солнцу, также не будут лишними террасы или перголы, которые защитят от избытка солнечных лучей.
- Берега со склоном на север обычно слабо освещены солнцем, летом они прохладные, но способствуют заболачиванию местности, размножению комаров и докучливой мошкары. Придется проводить дополнительные мелиоративные работы на участке, избавляясь от излишней влаги.
- Наиболее подходящим вариантом будет участок, расположенный на смешанной стороне света, юго-западной, северо-восточной и т. д.
Вариант расположения, когда дом, участок реки и берег тесно взаимосвязаны, представлен на фото. Дом находится на невысоком пригорке, который делает его местонахождение более безопасным.

Вот такой вышины, вот такой ширины…
Берег водоема надо оценить и с точки зрения его расположения по отношению к воде.
- Так, например, слишком низкий берег может быть затоплен весенним разливом. Не исключено и близкое стояние грунтовых вод, что тоже негативно скажется на высаженных растениях. Вполне возможно придется помещать их в специальных кадках и убирать на зиму или весну, уберегая от заморозков и затопления.
- Высокий берег также таит в себе некоторые опасности или неудобства. Например, излишне длинный путь вниз к реке или озеру, а также крутой подъем может испортить все удовольствие от общения с водоемом. Часто на высоких берегах от активных атмосферных осадков случаются оползни, что приносит вред постройкам и природному ландшафту.
На фото внизу — участок на берегу реки с высоким и крутым склоном, специальная терраса разбивает лестницу на две части, делая площадку для отдыха и более комфортный подъем.

Юридическая подоплека выбора места
Как лучше застроить и художественно оформить полюбившийся земельный участок на берегу реки? Ведь возможности хозяина ограничиваются не только природными условиями, но и законодательством.
Так, водоохранная зона у разных водоемов тоже различна, что надо учесть при освоении земель у воды. В водоохранной зоне действуют следующие ограничения:
- Близость постройки к водному зеркалу должна составлять не мене 200 метров. Около затонов, ручьев, озер возможна постройка хозяйственных сооружений на расстоянии не ближе 50 метров от воды.
- Предъявляются повышенные требования к герметичности сооружаемых очистных и хозяйственных сооружений около домика у реки.
- Условие движения и доступа к своему участку на автомобиле возможно только по твердым дорожным покрытиям, а не по лугу, как часто бывает.
- Содержание животных также может караться штрафами, так как они загрязняют прибрежную воду.
- Запрещено применять на близких к воде участках химические и биологические удобрения, которые с дождевыми водами могут попадать в реку или озеро и наносят непоправимый ущерб.
Одним словом: никакой самодеятельности. А вот лодки смолить, катера тралить — это сколько душе угодно.

Момент истины или избушка на курьих ножках
Не только в древних лесах да болотистых лугах встречается избушка на курьих ножках. Можно легко построить нечто подобное, а точнее дом на сваях, если приобретен участок у реки или озера. Чем обусловлено обычно строительство подобных домов? Конечно, не только оригинальной конструкцией. Как правило, береговая линия реки или озера считается проблемным грунтом для строительства, поэтому часто, возводя дом, застройщик обращается к технологии использования свай в виде винтовых столбов или опор.
Тонкости и задачи строительства у воды
Предположим, что хозяин, купивший участок на берегу озера или реки, никак не может определиться с тем, какой же построить дом.
Прежде всего, необходимо решить — это домик для сезонного использования или постоянное жилища. Какие разрешительные документы потребуются для строительства? И если после долгих раздумий все же не ясно, строить его на опорах или на фундаменте, тогда воспользуйтесь данными советами.
Дом на сваях необходим, если:
- участок под строительство расположен в местах с повышенной влажностью, или с близко расположенными грунтовыми водами;
- сыпучие почвы, которыми изобилуют обрывистые и высокие берега, также подходящее место для строительства дома на винтовых опорах;
- берег реки или озера очень часто имеет неровный ландшафт с большим количеством перепадов по высоте; сваи выравнивают сам дом, не изменив и не испортив окружающий пейзаж;
- подобное строительство обходится дешевле, чем рытье котлована и заливка бетонной опалубки;
- если домик у реки планируется использовать сезонно для рыбалки или охоты, то можно ограничиться строительством легкого, каркасного дома, который прекрасно стоит на винтовых опорах;
- сваи отлично уберегут жилище от весеннего половодья, при повышенной влажности или болотистой местности — также помогут сохранить домик сухим и чистым.
Например, застройщик купил 1 га (участок) на берегу реки, или 1 га пойменного луга. Какой строить дом, чтобы его не заливала вода по весне и не образовывалась сырость в доме, так как хозяин намерен использовать строение только летом? Ответ: Построить дом на винтовых опорах, например, как на фото, представленном ниже. Воздушная подушка между землей и домом надежно убережет строение от излишней влаги, развития сырости и плесени.

Пляжные страдания
Облагораживая, обустраивая небольшой частный пляж с собственным выходом к воде, следует помнить, что любой человек, желающий половить рыбку или искупаться с шумной компанией, обладает законным правом воспользоваться вашим пляжем. Потому что водоохранная зона принадлежит государству.
А те, кто успел построить собственные выходы к пляжу до 2007 года и не желает пускать соседей на «свою» вотчину, подвергаются постоянным проверкам со стороны надзорных органов, платят штрафы (пока небольшие), строят заборы заново. Хотя, строительство заборов в подобных зонах запрещено, чтобы получить разрешение, надо обойти много официальных инстанций и не факт, что подобное разрешение будет получено.
Выбирайте место в глуши, либо придется убирать мусор за веселыми гостями, которые пришли к реке повеселиться и отдохнуть. Золотой песочек может посеребриться от выброшенных жестяных банок из-под пива или еды. Да и мангал с ухой в речных местах не редкость.
Как правило, собственный выход к воде очень раздражает соседей и именно они будут инициаторами проверок и штрафов в ваш адрес.

Можно ли посадить сад у воды
Сила вдохновения и радости, которую дарит участок на берегу реки, обязывает оформить землю и провести ландшафтные изыскания не только для удобной рыбной ловли и охоты. Вполне возможно оформить красивый сад в естественном стиле.
Японские сады часто бывают организованы вокруг воды, либо камни имитируют волны и рябь волн.
В случае естественного ландшафта, сбегающего к реке или озеру, возможны различные варианты оформления и украшения местности.
Мостик на бамбуковых сваях, уходящий в затон, не только украсит округу, но и облегчит спуск лодки на воду.
Главное, что нужно помнить, сад у воды нужно сажать особенный, вписывающийся в окружающий ландшафт, не противоречащий естественному течению реки и окружающего пространства.

Что можно посадить или цвет, свет и натуральность
Цветы, предпочитающие влажные и затененные участки, можно высадить под деревьями. Это ирисы, очитки, верески, папоротники, горец змеевидный, пурпурный дербенник великолепно будет смотреться у берега среди высокой травы.
Прекрасно впишутся овсяница, клевер, лаванда, разноцветные вербеновые кустики, радующие глаз лакированными листочками и яркими соцветиями — бегонии.
Сделайте обрамления вокруг деревьев, или пустите рукотворную реку из луковичных (если участок сухой) и вечнозеленых низкорослых хвойных, а подушковидные хосты, всегда цветущие герани и лилейники расставят необходимые акценты. Сад в естественном стиле будет радовать не один год, так как все цветы многолетние и с ними не придется возиться каждый год.
Среди зелени можно расположить гамаки и шезлонги для отдыха на свежем воздухе, именно здесь можно ощутить гармонию, которая окружает со всех сторон.

Романтика: дачный участок на берегу реки
Вода — это сама жизнь. Не случайно лучшие словесники и философы мира посвящали воде незабываемые строки.
Ее невозможно понять, ей нельзя сопротивляться, ее только нужно беречь и наслаждаться теми неизъяснимыми чувствами, которые вода способна разбудить в человеке.

Без преувеличения можно сказать, что тому, кто приобрел участок земли на берегу реки, крупно повезло, несмотря на все ранее оговоренные минусы и трудности, поджидающие владельца в освоении такой земли.
Но игра стоит свеч. Главное — не навредить окружающей среде, сберечь драгоценность, доставшуюся в силу обстоятельств, стремлений или просто, потому что домик у реки — ваша давняя мечта.
fb.ru
Уютный дом на берегу реки, по проекту студии Balance Associates

Очаровательный загородный дом, выполненный по проекту студии Balance Associates, находится на острове Кортес в Британской Колумбии, Канада. Дом располагается на скалистом берегу Грузинского пролива. Проект дома разрабатывался с учетом специфики местного климата – влажного и очень ветреного.

Здания имеет прочный металлический каркас и бетонные фундаментные стойки, позволяющие прекрасно переносить самые мощные зимние штормы. Общая площадь дома составляет 564 квадратных метров. В доме три спальни, гостиная, соединенная с кухней и столовой, рабочий кабинет.

По периметру здания расположена большая терраса, позволяющая отдыхать на свежем воздухе, любуясь уникальной природой здешних мест. Центром дома является роскошная гостиная, возвышающаяся над землей почти на 3.5 метра.

Интерьер выполнен в теплой цветовой палитре с доминированием дерева в отделке помещений и элементах декора, что делает его легким и по-домашнему уютным. Дом выходного дня может стать местом постоянного проживания семьи, предпочитающей городской суете одиночество и тишину.

coolhouses.ru
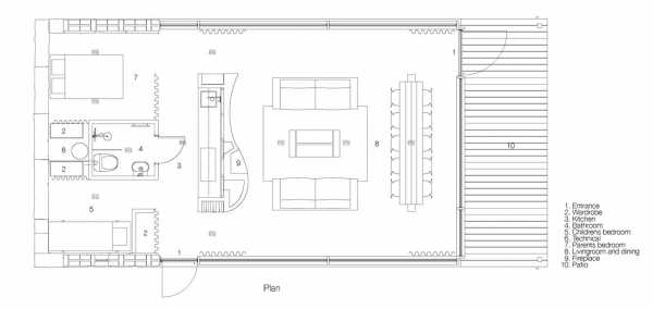
Проект современного дома на берегу реки
Современный семейный домик в Новой Адыгее. Отличный тихий участок на берегу реки с прекрасным видом на высотки большого города, современный продвинутый заказчик и теплый солнечный климат Краснодарского края, все эти факторы дали такой результат.

Получился закрытый внутренний дворик, бассейн с переливным краем и зона мангала. Глухой забор только со стороны улицы, по периметру прозрачный сетчатый забор, чтобы визуально не сковывать пространство. На улице есть три отдельные зоны: небольшая терраса рядом с главной спальней для медитации и йоги, площадка под навесом для отдыха после бани с выходом из спа-зоны и летним душем, большая терраса с бассейном для активных детей и повседневного отдыха.
В доме три спальни, общее жилое пространство, спа-зона с фитобочкой и парилкой, а также большая мастерская со швейным оборудованием для творчества. Окна и навесы сделаны так, чтобы комнаты получали максимально много солнечного света зимой, но летом оставались в тени. Интересным техническим решением было выполнить плоскую кровлю из деревянных двутавровых балок, что заметно снизило вес дома и позволило уменьшить размер фундамента, не говоря уже об экономической выгоде за счет уменьшения объема работ и простоте монтажа. Инженерное обеспечение дома выполнено по высоким современным требованиям. Не типовыми решением является наличие искусственной вентиляции с рекуперацией тепла, а так же солнечный подогрев воды, что в южном климате очень уместно.
Название: Дом на берегу р. Кубань
Архитектура: Archstudio ZIGZAG
Расположение: р. Адыгея, нст Восход
Общая площадь: 202,76 м2
Жилая площадь: 109,49 м2
Вспомогательная площадь: 80,57 м2
Строительный объем: 967,24 м2
Площадь застройки: 238,12 м2
Площадь участка: 0,1029 га
Состав проекта: эскизный и рабочий проект+дизайн интерьеров.
Оформите заявку на проект прямо сейчас!
Вы можете также задать вопросы автору проекта, попросить уточнить некоторые параметры, сообщить дополнительную контактную информацию и т.п.
Текст сообщения и ваши контактные данные не публикуются.
Если вы хотите обсудить проект на сайте (оставить свой комментарий), воспользуйтесь формой в самом низу этой страницы.
Другие проекты
Поделиться ссылкой:
magazin.magazindomov.ru
