Чертежи деревянных туалетов для дачи
Возведение дачного туалета своими руками не требует наличия серьезного строительного опыта и профессионального оборудования.
Рекомендуется перед началом процедуры тщательно изучить всю представленную информацию о проектировании и монтаже туалета, а также разобраться в чертежах и схемах будущей конструкции.
Данная статья поможет определиться с подходящим материалом изготовления кабинки, узнать про основные отличия канализации с выгребной ямой и без нее, а также предоставит полную инструкцию по строительству дачного туалета.
Блок: 1/9 | Кол-во символов: 526
Источник: https://trubanet.ru/kanalizacionnye-truby/tualet-na-dache-svoimi-rukami.html
Особенности построения чертежа
Дачный туалет – не такая простая конструкция, как склонны думать многие начинающие строители. Существует ряд особенностей, которые важно учитывать при разработке проекта и построении чертежей.
Согласно санитарным нормам, дачный туалет не должен размещаться ближе, чем на расстоянии 12 м от жилого дома и 8 м от колодца или скважины
Правила устройства туалета:
- Размеры.
Учитывайте размеры внутреннего помещения уборной. Минимально допустимая площадь – 1 х 1 м. Если сэкономить и сделать кабинку меньше, пользоваться ей будет неудобно. Также особое внимание стоит уделить выбору дачного унитаза. - Высота. Имеется и ограничение по высоте. Нежелательно строить сортир меньше 2 м в высоту. Входить в него, согнувшись, очень скоро надоест.
- Уклон крыши. При устройстве односкатной кровли задняя стенка проектируется несколько ниже передней. Это делается для формирования уклона крыши и стока дождевой воды за постройку.
- Освещение. Если вы не планируете проводить электрическое освещение, обеспечьте попадание дневного света в ваш туалет даже при закрытой двери. Если нет желания возиться с окнами, вырежьте хотя бы небольшое отверстие в верхней части двери.
- Вентиляция. Дачный сортир – постройка плохо вентилируемая. Чтобы это исправить, по задней стенке пускают вентиляционную трубу.

- Тень. Чтобы в дачном туалете было не душно летом, разместите его в тенистом месте.
- Место на участке. Еще один совет по выбору места постройки: избегайте соседства септика или выгребной ямы с источниками водозабора, колодцами, скважинами. Это делается из санитарно-гигиенических соображений.
Если принять во внимание все эти рекомендации, составить проект дачного туалета самостоятельно будет на порядок легче.
Галерея изображений
Фото из
По типу утилизации отходов отдельно стоящие туалеты подразделяются на накопительные и выносные. Накопительные варианты предполагают сброс продуктов жизнедеятельности в выгребную яму, септик или накопительную емкость
Туалеты с выгребной ямой устраивают в удалении от домов, источников водоснабжения и границ соседних участков
Выносные биотуалеты — сантехнические устройства с небольшой накопительной емкостью не требуют устройства канализации. Отходы накапливаются и компостируются в небольшой емкости, находящейся непосредственно в сантехнике, нуждающейся в регулярном опорожнении.
Павильон для биотуалета можно расположить в любом удобном месте
Постройку, совмещающую туалет и душевую кабинку, целесообразно подключать к одной накопительной емкости. В этом случае потребуется регулярная откачка стоков по мере накопления резервуара
Герметичную накопительную емкость, стоки из которой регулярно откачивают, располагать допустимо в 5 м от жилья. Этот способ сбора отходов не угрожает окружающей среде и грунтовой воде
Туалет на даче, посещаемой периодически лишь в летнее время, разумней будет возвести над выгребом без откачки. Такие ямы по мере наполнения закапывают, а сверху высаживают деревья. Возведенный над ним домик просто переносят на новое место
Объем выгребной ямы, как и объем накопительной емкости, подбирают в соответствии с численностью проживающих и интенсивностью посещения
Если на загородном участке устраивают туалет с накопителем или ямой, предполагающей откачку, то кроме удаления от дома и источников воды нужно учесть возможность подъезда для ассенизаторской техники
Туалет на загородном участке
Сооружение с выгребной ямой
Домик для выносного биотуалета
Блок душ-туалет с общей накопительной емкостью
Установка накопительной емкости для дачной канализации
Выгребная яма без проведения откачки
Выгребная яма для большого частного дома
Бетонированный накопительный резервуар
Блок: 2/7 | Кол-во символов: 3632
Источник: https://sovet-ingenera.
com/kanaliz/postroiki/chertezh-dachnogo-tualeta.html
Схема уличного туалета
Наиболее распространенным вариантом дачного или садового туалета является прямоугольная постройка. Ее еще называют «скворечник» так как в варианте с односкатной крышей она очень его напоминает.
Проект дачного туалета из дерева типа «Скворечник» (чтобы увеличить размеры картинки, щелкните по ней левой клавишей мышки)
На чертеже туалета, представленном на фото выше, для отделки использовалась доска толщиной 40 мм. Сооружение получается совсем недорогим. Двери можно сделать из тех-же досок, скрепленных планками вверху, внизу и наискосок. Петли можно поставить наружные — амбарные, оформив строение в нарочито грубом стиле.
Образцы дачных туалетов: чертежи одинаковые, исполнение разное
Несмотря на то, что постройка утилитарная, при желании ей можно придать привлекательный вид и скворечник превратится во вполне привлекательное небольшое здание. Например, можно сделать из этой постройки маленькую мельницу.
Дачный туалет-мельница — немного фантазии и неприглядная постройка становится украшением участка (чтобы увеличить размеры картинки, щелкните по ней левой клавишей мышки)
Тот же скворечник, но из сруба — уже совсем другой вид. Особенно гармонично все будет смотреться, если здание на участке выстроено (или будет выстроено) тоже из бревна.
Даже самый простой туалет из бревна смотрится почти как экзотика. Причем, его можно использовать и как зимний вариант (чтобы увеличить размеры картинки, щелкните по ней левой клавишей мышки)
Для регионов, где древесина — роскошь, и расходовать ее на постройку туалета нерационально, ту же конструкцию можно обшить другим материалом. Например, каркас обшивается любым листовым материалом — фанерой, ДВП, ГВЛ. На них снаружи можно уложить отделочный материал — плитку или декоративный камень. Еще более бюджетный вариант — обшить профнастилом.
Туалет на даче своими руками строят из любого материала. Этот — из профнастила (чтобы увеличить размеры картинки, щелкните по ней левой клавишей мышки)
Это тот тип туалета, Который несложно построить из кирпича.
Делают их обычно в полкирпича. Никаких сложностей даже для неопытного каменщика нет. Кладка со смещением, раствор — цементно-песчаный.
По тому же проекту и чертежу можно построить туалет из кирпича (чтобы увеличить размеры картинки, щелкните по ней левой клавишей мышки)
Пошаговая инструкция строительства уличного туалета тут.
Блок: 2/6 | Кол-во символов: 2361
Какой туалет построить: виды и особенности
Собственно здесь есть всего два варианта: с выгребной ямой или без нее.
- Туалет с выгребной ямой – простое, проверенное опытом и временем сооружение, которое состоит из оборудованной выгребной ямы и туалетного домика над ней. По мере заполнения нечистотами яму вычищают вручную или заказывают ассенизаторскую машину.
А бывает, просто переносят домик на другое место. Старую яму закапывают, а через лет 6-7 ее содержимое окончательно перегниет и можно снова ставить туалет обратно.
- Люфт-клозет – разновидность уличного туалета с ямой для нечистот, но с той разницей, что она должна быть герметична. Такой туалет приходится строить, если он расположен близко к дому, источнику воды или когда грунтовые воды залегают высоко.
Схема: как устроен люфт-клозет
- Туалет без выгребной ямы или пудр-клозет обустраивают, если грунтовые воды залегают очень высоко или если туалетом мало пользуются. В данном случае емкостью для сбора нечистот может быть все что угодно, кроме ямы (ведро, бочка, пластиковый бак). Нужный объем определяет интенсивность пользования санузлом.
После каждого похода в такой туалет нечистоты присыпают сухим торфом, иногда используют опилки или золу, поэтому в домике должен быть предусмотрен ящик для «маскирующей пудры». После заполнения, емкость извлекают вручную, а содержимое эвакуируют в компостную яму. Если нечистоты были пересыпаны торфом, то через время они становятся чудным удобрением.
Туалет без выгребной ямы (пудр-клозет)
Важно! Если грунтовые воды залегают ниже 2,5 метров, строить можно любой тип туалета, но если они расположены выше, то от выгребной ямы придется отказаться.
Блок: 2/11 | Кол-во символов: 1651
Источник: https://sandizain.ru/na-dache/dacha-sanuzel/kak-sdelat-pravilnyj-tualet-na-dache-svoimi-rukami.html
Кабинка с выгребным резервуаром
Очень часто создают на даче подобную конструкцию. Принцип ее сооружения яма для отходов сооружается непосредственно под домиком.
Проект туалета с выгребным резервуаром на даче
Это не совсем комфортное сооружение, но простота конструкции и небольшие денежные вложения в строительство делают эту модель востребованной и популярной.
При заполнении ямы на 2/3, ее откачивают. Есть некоторые недостатки этого сооружения: неприятные запахи в теплую погоду; загрязнение грунта.
Важно! При нахождении донных вод рядом с поверхностью, яма с отходами должна быть полностью герметичной, для предотвращения загрязнений.
Вернуться к оглавлению
Блок: 3/8 | Кол-во символов: 673
Источник: https://Proekt-sam.ru/plans/chertezh-dachnogo-tualeta.html
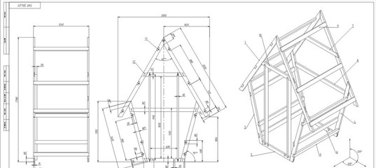
Туалет типа «Шалаш» (треугольный)
Эта туалетная кабинка имеет вид треугольника. Боковые стенки одновременно являются скатом кровли. Построить такой туалет своими руками можно за несколько часов. Чертежи с примерными размерами даны на картинке ниже. В них можно и нужно вносить корректировки: все габариты даны для людей средней комплекции.
Чертеж дачного туалета типа «Шалаш» (чтобы увеличить размеры картинки, щелкните по ней левой клавишей мышки)
Если нужны более широкие двери, можно не раздвигать основание, которое в данном проекте и так немалое, а сделать двери нестандартной формы — как на рисунке справа.
Обшивка отделочными материалами в туалетах «Шалаш» проводится только впереди и сзади. На боковые поверхности укладывают кровельный материал. Можно использовать любой, но неплохо смотрится мягкая черепица или полимерный шифер.
Имея чертежи треугольный туалет на даче построить проще простого
На фото справа обрешетка сделана под листовой кровельный материал — использовали шифер из пластика — он есть разных цветов, стоит относительно недорого, монтируется просто — гвоздями с прокладками.
Если использовать планируете мягкий кровельный материал — рубероид, битумную черепицу или что-то похожее, обрешетку делайте сплошную — из листа влагостойкой фанеры, ДСП, ГВЛ. Их крепят к каркасу саморезами, сверху настилают кровельные материалы.
Блок: 3/6 | Кол-во символов: 1350
Источник: https://stroychik.ru/tualet/chertezhi-i-foto-dachnyx-tualetov
Выбор материала
Еще одним важным моментом является определение материала, который будет использован для наружной части, а также вид самой кабинки. Туалет на даче своими руками может изготавливаться из:
- металлопрофиль. Основа изготавливается из дерева или профильных труб из металла, которые соединены друг с другом сварочным способом.
Затем основа ошивается листами металла. Данный материал также покрывается специальным составом, которое защищает дачный туалет от отрицательного воздействия повышенной влажности. Основное преимущество использования профнастила – возможность быстрого сооружения; - кирпич. Подобные туалеты способны эксплуатироваться в течение длительного периода, однако предполагают достаточно трудоемкую и дорогостоящую установку. Строение обладает большой массой и может устанавливаться только на фундамент, поэтому потребуется сделать ленточную или столбчатую основу.
- доски являются самым распространенным вариантом для туалета на даче. Основные преимущества – доступность и низкая стоимость, возможность реализации различных видов дизайна, мобильность. К недостаткам можно отнести только подверженность досок негативному воздействию влаги, однако на сегодняшний день существует множество способов, чтобы свести этот недочет к минимуму. Например, эксплуатационный срок можно существенно увеличить, если нанести грунтовку и покрасить.
Если владелец не желает портить натуральный вид дерева, то существуют многочисленные прозрачные составы, которые отталкивают влагу.
Блок: 4/9 | Кол-во символов: 1481
Источник: https://trubanet.ru/kanalizacionnye-truby/tualet-na-dache-svoimi-rukami.html
Выбор места под туалет
Перед установкой туалета нужно изучить нормы СаНПИН, ими нельзя пренебрегать. Нужно учесть и интересы соседей, иначе будут постоянные неприятные ситуации и разногласия, если по участку будет распространяться неприятный запах.
Так как же правильно найти место под туалет:
- Если на даче имеется скважина с питьевой водой, то на дистанции 25 м никаких туалетов устанавливать нельзя. Обычно такие колодцы наполняются водой из верхних слоев, они могут быть загрязнены отходами из ямы. Варианты размещения туалета на дачном участке
Готовый собранный туалет на даче - Туалет должна находиться в срытом месте за большим строением или в конце участка.
- Невозможно ставить санузел ближе 1 метра к границе соседского участка, в противном случае они могут потребовать через суд переноса конструкции.

- При неровном рельефе участка, на пригорке строится дом, а домик монтируют в низине. Не помещает узнать частое направление ветра и установить туалет с подветренной стороны, чтобы не задыхаться от запаха нечистот. Схема и проект кабинки туалета на участке
- Какую глубокую яму для отходов вы не предусмотрели, ее периодически нужно освобождать, так что к конструкции нужен свободный подъезд.
Это обязательные санитарные нормы, которые нужно соблюдать при строительстве туалета на даче.
Вернуться к оглавлению
Блок: 4/8 | Кол-во символов: 1331
Источник: https://Proekt-sam.ru/plans/chertezh-dachnogo-tualeta.html
Виды туалетов
Простота конструкции позволяет обустроить туалет на даче своими руками чертежи, и типоразмеры которого, можно изучить в каталогах фирм или рассчитать самому. Древесина самый популярный и доступный материал, простой в обработке и не требующий специального инструмента для постройки. Сама конструкция состоит из каркаса, обшитого доской и накрытого кровельным материалом.
Построить дачный туалет своими руками просто, для этого не нужно производить сложных расчетов, достаточно знать стандартные размеры, изучить инструкцию по сооружению, подготовить материал и инструмент и начать отстраивать санузел.
Схема и проект деревянного туалета для дачи
Готовый собранный туалет из дерева на даче
Простая конструкция дачного туалета
Стоит отметить, что соорудить домик это половина дела, вторая половина заключается в создании специального резервуара для утилизации отходов. Есть несколько категорий туалетов, которые различаются по принципу переработки отходов.
Люфт-клозет
В этом виде туалетов устанавливается только нижняя часть унитаза, с технологическим уклоном пола в сторону утилизационного резервуара. Благодаря ему остатки стекают в обустроенную выгребную яму самостоятельно. Сама емкость для отходов обустраивается позади кабинки, и опорожняется по мере заполнения.
Схематическое устройство люфт клозета
Чертеж люфт клозета для дачи или дома
Эта конструкция хороша тем, что ее можно установить в помещении, создав теплый санузел, а накопитель отходов выкопать вне дома.
Для этого прикрепить к унитазу полипропиленовую трубу диаметром 100-150 мм.
В данной ситуации не нужно монтировать дорогостоящую полноценную коммуникацию.
Названия элементов люфт клозета
Важно! При обустройстве дачного люфт-клозета с выносом ямы за пределы дома, никаких посторонних запахов в санузле не будет.
Стоит ответственно отнестись к обустройству резервуара для остатков, его качественно утепляют, накрывают герметизированной крышкой и грамотной системой вентиляции.
Процесс постройки люфт клозета на даче
Минусом подобного туалета является то, что при его обустройстве придется нарушить целостность стены.
Пудр-клозет
Самая простая конструкция и проект туалетов для дачного участка. Для ее сооружения достаточно выкопать яму, которая будет служить накопителем отходов, над которой устанавливается деревянный домик. Для предотвращения появления запаха, отходы нужно пересыпать после похода в туалет. В качестве пудры применяют опилки, торф.
Чертеж с размерами устройства пудр клозета
Проект пудр клозета на даче
Построить туалет на даче своими руками чертежи составлять не обязательно, можно сделать простой схематический набросок, чтобы понимать представление об этапах работы. При покупке подобной конструкции в магазине, емкость с био-присыпкой входит в комплект к санузлу. Пользоваться ей просто, достаточно поставить ведро с опилками или торфом и пользоваться совочком для пудры.
Процесс постройки пудр туалета на дачном участке
Плюсом этих туалетов является использование отходов в качестве удобрений. При заполнении ямы, конструкцию переносят, и засыпают землей резервуар, оставляя до получения перегноя.
Минус почва будет загрязняться жидкими сточными водами, что не совсем полезно. Если донные воды пролегают близко к поверхности, то такую постройку на участке устанавливать не рекомендуется.
Биотуалет
Это туалет, теремок из дерева, снабжается накопителем заводского производства, в котором отходы перерабатываются бактериями без доступа воздуха.
Чертеж с размерами для установки биотуалета на даче
Бактерии засыпаются в накопитель вместе с препаратом биологического происхождения. Он покупается отдельно в специализированном магазине. Отходы быстро перерабатываются, очищать контейнер часто не придется, отходы, возможно, сразу применить как удобрение для участка.
Вернуться к оглавлению
Блок: 2/8 | Кол-во символов: 3850
Источник: https://Proekt-sam.ru/plans/chertezh-dachnogo-tualeta.html
Кабинка туалетная
Как мы уже писали ранее, домик лучше соорудит из дерева. Это самый доступный и недорогой материал, при правильной обработке и уходе за которым, конструкция будет долговечной и привлекательной.
Подборка различных дизайнов и вариантов оформления туалетных кабинок для дачи
Вариант отделки туалетной кабинки из дерева
Это самый выигрышный материал для постройки данной конструкции. Кабинка собирается из брусков и досок.
Вернуться к оглавлению
Блок: 5/8 | Кол-во символов: 469
Источник: https://Proekt-sam.
ru/plans/chertezh-dachnogo-tualeta.html
Теплая уборная
Пользоваться туалетом со стенкой в одну доску летом вполне комфортно. Но не все дачи посещаются только в теплое время года. Для осенне-весеннего периода необходимо хоть какое-то утепление, которое перекроет сквозняки.
В этом случае конструкция туалета ничем не отличается. Только размеры увеличите на 5-10 см больше: обшивка будет двойная — снаружи и изнутри, а между обшивкой уложен утеплитель. Утеплить нужно будет и двери — двойные слишком тяжелые для такой постройки, но изнутри их можно оббить куском линолеума, дермантином и другим хорошо моющимся материалом.
О строительстве туалета своими руками (с фото-отчетом можно прочесть тут).
Блок: 5/6 | Кол-во символов: 657
Источник: https://stroychik.ru/tualet/chertezhi-i-foto-dachnyx-tualetov
Проектирование кирпичного туалета с чертежами
Фундаментом для кирпичного туалета может служить железобетонный бордюр, углубленный в грунт, или бетонные блоки, расположенные по углам конструкции.
Стандартная небольшая кабина с площадью стен в пределах 8 квадратов потребует около 300 кирпичей для возведения. Расчет примерный и очень утрированный, но для общего понимания процесса этой информации достаточно.
Последовательность действий при укладке тычкового и ложкового рядов кирпичной кладки. Стены туалета должны быть прочными, ведь постройкой будут пользоваться не один год
Для такого объема кладки нужно запроектировать около 60 кг цемента для приготовления раствора. Размеры кирпичного дачного туалета можно взять с чертежа туалета-скворечника.
Если деревянные стены изготавливают по отдельности, то дачный сортир из кирпича выкладывается порядово по всему периметру.
Цементный раствор требует времени для набора прочности. Если выложить за раз все ряды кладки, на нижние будет приходится большая нагрузка, под действием которой не схватившийся раствор просто выдавится наружу из всех швов.
Чтобы этого не произошло, кладку осуществляют в несколько этапов.
Оптимально – по 4-5 рядов в день. Строительство затянется, но результат будет гораздо лучше.
Проемы нужно отобразить на чертеже заранее, чтобы в процессе кладки не отвлекаться на лишние расчеты и подгонку
Кровля может быть односкатной, как в случае деревянного дачного скворечника-уборной, так и двускатной. В зависимости от этого меняется схема расположения стропильной сетки. Кроют туалет все тем же шифером, профнастилом или другими материалами покрытия.
Блок: 6/7 | Кол-во символов: 1612
Источник: https://sovet-ingenera.com/kanaliz/postroiki/chertezh-dachnogo-tualeta.html
Комбинированный душ-туалет
Вторая по необходимости постройка на даче — душ. А если так, то зачем строить два отдельных сооружения, если их можно построить под одной крышей. Несколько чертежей дачных туалетов с душем для самостоятельной постройки опубликованы ниже.
Вариант комбинированного туалета для дачи душем (чтобы увеличить размеры картинки, щелкните по ней левой клавишей мышки)
Второй проект туалета и душа под одной крышей.
Внешний вид и чертеж туалета и душа для дачи в одном строении (чтобы увеличить размеры картинки, щелкните по ней левой клавишей мышки)
Вид и размеры туалет+душ спереди и сбоку (чтобы увеличить размеры картинки, щелкните по ней левой клавишей мышки)
Как вы догадались, строение просто увеличивают в два раза в ширину. Если захотите, сможете создать свой проект, под свои желания и потребности. Чертеж хозблока с туалетом будет точно таким. Возможно, вам нужно будет сделать одно из помещений чуть больше. Просто предусматриваете это при планировке и изготовлении опор под постройку.
Блок: 6/6 | Кол-во символов: 1015
Источник: https://stroychik.ru/tualet/chertezhi-i-foto-dachnyx-tualetov
Выводы и полезное видео по теме
Как сделать проект деревянного дачного туалета в программе SketchUp:
Разработка проекта и чертежей дачного туалета – дело непростое, несмотря на скромные размеры постройки.
Следуйте приведенным выше инструкциям, и строительство дачного сортира любой сложности покажется проще пареной репы. Главное – подходить к работе с ответственностью и долей здорового энтузиазма.
Если вам доводилось самостоятельно возводить клозет на дачном участке, поделитесь, пожалуйста, своим опытом с нашими читателями. К комментариям можно прикладывать фото чертежей, расчетов и готовых построек. Также в блоке с комментариями можно задать интересующие вас вопросы по теме статьи.
Блок: 7/7 | Кол-во символов: 686
Источник: https://sovet-ingenera.com/kanaliz/postroiki/chertezh-dachnogo-tualeta.html
Установка двери для туалета
Двери устанавливают обычные деревянные, готовые пластиковые или самодельные, из того материала, которым обшивался каркас. Навешивают дверь на 2 петли. Способ закрытия в принципе может быть любой, традиционно это защелка, шпингалет или крючок, снаружи и внутри. От более хитрых замочных систем, например, с защелками, лучше отказаться, поскольку их механизм будет подвергаться влиянию влаги и быстро поржавеет.
Для установки двери достаточно двух петель
Блок: 7/11 | Кол-во символов: 481
Источник: https://sandizain.ru/na-dache/dacha-sanuzel/kak-sdelat-pravilnyj-tualet-na-dache-svoimi-rukami.html
В заключении
Из перечисленного выше ясно, что строительство дачной уборной из дерева самостоятельно не составит труда. Какую конструкцию соорудить, решать хозяину, есть возможность просто выкрасить, или облицевать различным материалом. Если для вас это сложно, то можно приобрести готовый санузел для улицы по недорогой цене. Многие уже оценили удобство покупных туалетов.
Блок: 8/8 | Кол-во символов: 373
Источник: https://Proekt-sam.ru/plans/chertezh-dachnogo-tualeta.html
Освещение
Для более комфортной эксплуатации удобств лучше заблаговременно позаботиться об их освещении. Это может быть настенный фонарик, который работает от аккумулятора. Как вариант можно подвести электропроводку и подключить небольшой осветительный прибор.
Варианты освещения дачного туалета
А днем освещать внутреннее пространство будет небольшое окошко.
Вырезают его, обычно, над дверьми или в верхней части двери, но вариантов на самом деле больше, от фигурных окон на стенах и до прозрачной крыши.
Совет! Выгребная яма прослужит дольше, если в нее не бросать туалетную бумагу и другие гигиенические или бытовые принадлежности, поэтому обязательно в туалете должно быть ведро. Если позволяют размеры, удобно здесь установить обычный умывальник с подвесным носиком, тем более, что вы гребная яма уже готова.
Блок: 8/11 | Кол-во символов: 813
Источник: https://sandizain.ru/na-dache/dacha-sanuzel/kak-sdelat-pravilnyj-tualet-na-dache-svoimi-rukami.html
Пудр-клозет: особенности сооружения
Отсутствие выгребной ямы является основным отличием в строительстве. Но есть и некоторые различия в конструкции домика. Придется подумать о способе извлечения емкости, в которой собираются нечистоты.
Схема: устройство пудр-клозета
Дверцей, обычно, оборудуют заднюю стенку домика или переднюю стенку стульчака.
Внутри кабинки устанавливают специальный ящик под торф (золу, опилки). Без вентиляции здесь так же не обойтись, только труба опускается не в яму, а непосредственно под стульчак.
Блок: 9/11 | Кол-во символов: 524
Источник: https://sandizain.ru/na-dache/dacha-sanuzel/kak-sdelat-pravilnyj-tualet-na-dache-svoimi-rukami.html
Плюсы и минусы выгребной ямы
Преимущества возведения своими руками туалета с выгребной ямой:
- возможность создать фильтрационную систему, которая способная самостоятельно избавляться от стоков и нечистот. Благодаря этому не требуется регулярно вызывать ассенизаторскую машину и обеспечивать подъезд к яме;
- можно эксплуатировать подобный туалет круглый год.
Недостатки:
- требуется больше времени на постройку и оборудование слива;
- монтаж и создание ямы для туалета стоит дороже;
- возможно загрязнение грунта при высоком уровне подземных вод.
Достоинства дачного туалета, построенного самостоятельно, без сливной ямы:
- мобильность, позволяющая без проблем перемещать строение, а также размещать резервуар на некотором расстоянии от кабинки;
- возможность возведения при близком расположении грунтовых вод к поверхности;
- простой монтаж;
- менее строгие требования к расположению на участке, в частности, к расстояниям до источников воды, т.
к. герметичная система не приводит к загрязнению окружающей среды; - если необходимо, постройку можно легко разобрать или полностью убрать.
Недостатки подобных туалетов:
- вероятность распространения зловония. Это касается не всех разновидностей туалетов (если переработка происходит с использованием торфа, такая проблема не возникает). Неприятный запах быстро появляется из-за малого объема резервуара, где хранятся стоки и отходы. Решение проблемы – сооружение системы принудительной вентиляции;
- необходимость регулярного устранения наполнения резервуара. Это делается ассенизаторской техникой либо обеспечивается полная переработка и перемещение отходов в компост;
- невозможность использования в зимний период.
Смотреть видео
Таким образом, возведение туалета возможно даже для мастеров, которые не имеют опыта в строительстве.
Однако важно изучить инструкции и рекомендации, чтобы знать, как построить туалет на даче правильно.
В первую очередь желательно определиться с материалом и видом кабинки, затем произвести проектирование канализации. Это позволит качественно выполнить строительство, в результате чего туалет прослужит в течение десятилетий.
Блок: 9/9 | Кол-во символов: 2060
Источник: https://trubanet.ru/kanalizacionnye-truby/tualet-na-dache-svoimi-rukami.html
Количество использованных доноров: 6
Информация по каждому донору:
- https://sovet-ingenera.com/kanaliz/postroiki/chertezh-dachnogo-tualeta.html: использовано 3 блоков из 7, кол-во символов 5930 (17%)
- https://sandizain.ru/na-dache/dacha-sanuzel/kak-sdelat-pravilnyj-tualet-na-dache-svoimi-rukami.html: использовано 5 блоков из 11, кол-во символов 3980 (11%)
- https://trubanet.ru/kanalizacionnye-truby/tualet-na-dache-svoimi-rukami.
html: использовано 6 блоков из 9, кол-во символов 7258 (20%) - https://Proekt-sam.ru/plans/chertezh-dachnogo-tualeta.html: использовано 6 блоков из 8, кол-во символов 7007 (20%)
- https://o-remonte.com/tualet-na-dache-svoimi-rukami-poyetapno/: использовано 3 блоков из 8, кол-во символов 6220 (17%)
- https://stroychik.ru/tualet/chertezhi-i-foto-dachnyx-tualetov: использовано 4 блоков из 6, кол-во символов 5383 (15%)
Как построить туалет на даче своими руками: размеры, чертежи, фото
Как построить туалет на даче своими руками: размеры, чертежи, фото рассмотрим в данном материале. Для тех, кто решил заниматься этим делом самостоятельно, процесс может поначалу показаться сложным. Именно по этой причине предварительно следует максимально изучить всю информацию, определиться с конкретным видом дачного туалета.
Кроме того, что еще до начала постройки нужно будет определиться с точным типом конструкции, именно его рассмотрим в данном материале, также понадобится выбрать точное место, где будет находиться сооружение.
Важно выбирать для туалета на улице такое место, чтобы он был недалеко от дома.
Совет! Самый простой способ – это постройка деревянного туалета. Именно такие чертежи предлагаем в данном материале, а точное описание строительства не ложно найти в сети. Можно ли заниматься строительством в високосный год.
Распространенные виды дачных туалетов
Люфт-клозет
Данный вариант дачного туалета характеризуется тем, что из унитаза все отходы собираются в приемнике, который потребуется по мере наполнения самостоятельно очищать. Большим плюсом такой конструкции является то, что она с точки зрения санитарии чистая и безопасная. Как правило, для правильного перемещения отходов нужно будет сделать наклонный пол у резервуара, где они собираются.
Кроме уже указанного преимущества, такой туалет можно построить без отдельной канализационной системы. Чертежи, размеры и фото того, как построить такой туалет на даче своими руками указывают на то, что сам унитаз можно ставить в каком-то теплом помещении в доме, а вот резервуар для хранения отходов поместить на улице.
Очистка емкости с отходами проводится с использованием ассенизаторской машины.
Важно! Огромным недостатком такой системы организации дачного туалета является то, что нужно встраивать резервуар для хранения в несущую стену дома. То есть, такой туалет нужно закладывать уже на этапе строительства дома.
Пудр-клозет
У данного вида дачного туалета также имеется накопитель. Название свое система получила по той причине, что отходы чередуются со слоями засыпки, как будто припудриваются. В качестве засыпки можно использовать торф или золу, опилки или смеси данных веществ. Нужно будет выполнять засыпание после каждого посещения туалета.
Какие преимущества можно отметить:
- Содержимое накопителя можно использовать в качестве отличного органического удобрения для посадок. Нужно будет выгружать резервуар в компостную яму, чтобы удобрение дозревало там.
- Не нужно вызывать каждый раз машину для очистки резервуара.

- Земляных работ при проведении строительства требуется минимум.
- Как построить туалет на даче своими руками: размеры, чертежи, фото говорят о том, что можно делать компактные и даже переносные модели.
Биотуалет
Именно так называются данные виды сооружений, где отходы в обязательном порядке проходят дополнительную переработку. Процесс разложения позволяет превратить содержимое резервуара для отходов в ил, который занимает мало место и совершенно безопасен для состава. Для откачки такие системы также крайне удобны.
Что используется в качестве наполнителя для реакции разложения отходов:
- Смесь торфа;
- Различные химические активные реагенты;
- Сухие или жидкие биопрепараты. Чаще всего это колонии бактерий, которые могут разлагать такого рода отходы.
Выгребные ямы
Наверное, данный вид дачного туалета является классическим в наших дачных поселках и деревнях.
Нужно сказать, что такой туалет не назвать самым удобным, зато, он точно простой в строительстве и дешевый. В таком случае отходы собираются в накопители, и периодически накопитель очищается с использованием ассенизаторов. Как самостоятельно сделать простую дачную беседку.
Чтобы сэкономить еще больше, выгребную яму можно просто засыпать землей, вырыть в другом месте и туда перенести домик, который и представляет собой сооружение туалета. В выгребной яме вскоре образуется компост, который смело можно использовать в качестве удобрения почвы. В яме, как правило, нет дна. Иногда ямы могут засыпать щебнем или другим похожим материалом, через который осуществляет фильтрация.
Как выбрать место
Перед началом строительства нужно будет найти место, где строить свой дачный туалет. Многое тут зависит от типа конструкции и от того, какой накопитель выбран. Также важно обращать внимание на розу ветров, чтобы туалет было комфортно посещать и он не вызывал неприятных запахов на участке собственника или его соседей.
Многим видам туалетов, как понятно из этого материала, требуется периодическая откачка отходов. При выборе места для строительства нужно учитывать свободное пространство, чтобы специальная техника для откачки могла подъехать к резервуару с отходами.
Важно! К негерметичным сооружениям (выгребные ямы без дна) предъявляются самые высокие требования по поиску места для строительства. Нужно найти для них среднее по высоте пространство без сложного рельефа. Обязательно проследить, чтобы отходы не попадали в грунтовые воды. Как самому построить печь для теплицы.
Как построить туалет на даче своими руками: размеры, чертежи, фото предлагаем к рассмотрению в данном материале. На страницах нашего сайта можно найти множество полезной информации по этой теме, а также других интересных материалов о том, как можно обустраивать дачу. Желаем хорошего летнего сезона!
Туалет на даче своими руками чертежи размеры
09.
05. 2015.
Туалет относится к тем видам построек, которые можно возвести самостоятельно, не прибегая к помощи мастеров. Дачный участок не может быть без туалета, даже если учитывать периодическое посещение человека участка. Если учесть эти два фактора, то почему бы не рассмотреть вариант постройки туалета на даче своими руками.
Какие туалеты могут быть
- Деревянные. Самый простой способ сделать постройку именно своими руками. С древесиной работают все или почти все, так что особых проблем не должно быть. Брус сечением 40*50 или 40*60 и доска – вот основные материалы. Для большей эстетики доску можно заменить на вагонку. При возведении такого варианта необходимы чертежи, где можно точно прикинуть размеры каждой заготовки. Недостатком деревянного туалета можно считать его недолговечность, особенно нижней части, которая будет находиться непосредственно у ямы.

- Металлические. Более долговечные, но очень жаркие даже для непродолжительного нахождения внутри в летнюю жару. Правда, можно расположить туалет под деревом или со стороны, где солнце бывает редко. Особенностью считается тот факт, что без сварочного аппарата не обойтись. Вдобавок понадобится дрель, УШМ (она же болгарка).
- Пластиковые. Самый простой способ сделать туалет своими руками. Да тут и делать не приходится – останется только поставить на готовую яму. Плюсы: никакого дополнительного ухода не требуется. Минусы: несмотря на всю прочность пластика, конструкция довольно хлипкая. Впрочем, нам там не в футбол играть.
- Кирпичные. Самые трудоёмкие в исполнении, но и самые долговечные из всех представленных видов. Если у вас есть навыки каменщика, то сделать туалет своими руками у вас получится. Тем более, что инструмента нужно намного меньше, чем для деревянных или металлических конструкций.
Как сделать яму
Яма – самая важная часть туалета.
И пускай вам не кажется, что от неё ничего не зависит, да и не видно её после завершения строительства. Нет, такие мысли будут заблуждением. От ямы многое зависит. Например, где именно расположить туалет, настолько глубоко нужно копать яму, как обустроить её внутри и какой для этого выбрать материал – всё играет свою роль. Теперь по порядку:
- Место. Выбор места – сложное дело. С одной стороны, не хочется туалет располагать слишком далеко от дачи. С другой стороны, никто не старается расположить строение напротив входа в дом или немного сбоку. Да и наличие колодца или скважины тоже играет роль – если жидкость с ямы будет переходить в грунт, то она может загрязнить воду на участке. Лучше всего отталкиваться от того, что туалет должен быть не менее 15-20 метров от источника воды.
- Рытьё. Лучше всего копать яму вручную, без привлечения техники. Тогда яма получится аккуратной, с ровными стенками. Размеры подбираются с таким расчётом, чтобы после отделки ямы кирпичом или после бетонирования оставалось пространство около 1000*1000 мм.
Глубина зависит от наличия грунтовых вод. Но и стараться вырыть яму на 5 метров – это несколько глупо. Ведь дача посещается сезонно и использовать туалет по назначению придётся не так часто, как в условиях частного дома. - Бетонировка пола. После того, как углубление в земле выполнено, нужно на 5-7 сантиметров забетонировать пол. Это делается для оформления своеобразного фундамента под будущую облицовку кирпичом. Сложность состоит в том, что в условиях ямы выравнивать слой бетона сложно. Лучше всего использовать подобие шпателя на длинной палке – что-то похожее внешне на швабру для мытья пола.
- Облицовка стен. Можно заливать все стены бетоном через опалубку, но тогда чистить придётся часто. Если обложить стены кирпичом с зазором в несколько сантиметров, то жидкость будет частично уходить в грунт. Таким способом вы точно можете не переживать о звонках ассенизаторам – яма с зазорами в стенках метр на метр и глубиной 2 метра заполняется двумя людьми в условиях дачи лет 30.
- Изготовление перемычек или плиты.
Это будет основанием, на которое будет ставиться сама конструкция туалета. Для кирпичного варианта лучше залить плиту с надёжным стальным каркасом внутри. Для лёгких конструкций можно обойтись железными балками или деревянным брусом. Но их следует тщательно обработать – агрессивная среда быстро «сожрёт» их.
Теперь, когда самая основная часть работы выполнена, можно приступать к самой стройке. Чертежи, размеры, инструмент – туалет своими руками потребует достаточно усилий.
Размеры сантехники для ванной комнаты
Если у вас дома есть какие-то крупные сантехнические работы или вы делаете их самостоятельно, самой сложной частью работы может быть то, что называется «черновой работой». Это та часть работы, где подключаются раковина, ванна или смеситель. Если черновая обработка выполнена правильно, работа будет выполнена примерно на 90 процентов.
Однако это не должно быть пугающей задачей. Существует набор принятых приблизительных размеров раковин, туалетов и ванн/душевых кабин.Кроме того, производители этих приспособлений часто указывают спецификации в своих руководствах. Важно сверить стандартные размеры со спецификациями производителя, чтобы убедиться, что они подходят для вашей установки.
Терминология
Осевая линия: Этот термин часто используется в сантехнике. По сути, это воображаемая вертикальная линия, проведенная через ключевую точку, обычно сливную трубу. Например, если две трубы указаны на расстоянии 10 дюймов друг от друга, вы измеряете 10 дюймов между центрами труб, а не 10 дюймов между краями труб.
Высота базового этажа: Это относится к черновому полу, если это новое строительство, или готовому полу, если это реконструкция.
Размеры следует рассматривать как ориентировочные, поскольку они могут меняться. Инструкции по эксплуатации, прилагаемые к тому, что вы устанавливаете, будут иметь более точные размеры.
| Туалет | Раковина | Душ/ванна | |
| Линия подачи (вертикальная) | 8 1/4″ | На 2–3″ выше сливной трубы | Душ 80″; ванна от 20 до 22 дюймов; излив 4″ над краем ванны |
| Линия подачи (горизонтальная) | макс. 6 дюймов от центра | 4″ слева и справа от центра | 8″ друг от друга |
| Сливное/сливное отверстие на задней стенке | 12 1/2″ | Н/Д | 14″ |
| Сливное/сливное отверстие (вертикальное) | 0″ | от 16 до 20 дюймов | 0″ |
| Крепление (боковой буфер) | от 15″ до 18″ мин. | от 15″ до 20″ мин. | мин. 18 дюймов |
| Крепление (передний буфер) | мин. 21″ | мин. 21″ | мин. 18 дюймов |
Туалеты:
Линия снабжения: С точки зрения высоты, восемь и 1/4 дюйма над полом; труба только для холодной воды создает одно отверстие на высоте от 5 до 10 дюймов над полом.
Для горизонтальной линии подачи ее следует измерять от осевой линии, проходящей вертикально через центр туалета; отверстие линии подачи должно быть на шесть дюймов сбоку от центральной линии; проверьте туалет, чтобы подтвердить место подключения к водопроводу.
Выпускное отверстие (задняя стенка): Смещенное от задней стенки отверстие на 12 с половиной дюймов
Сливное отверстие (вертикальное): Слив расположен на уровне пола; расстояние равно нулю
Крепление (поперечный буфер): Измеряется от центра унитаза до любой стороны, минимальный зазор 15 дюймов до любой стены или другого приспособления; 18 дюймов рекомендуется, если позволяет планировка ванной комнаты
Крепление (передний буфер): Измеряется от переднего края унитаза вперед, минимальный зазор 21 дюйм до ближайшего препятствия; 30 дюймов рекомендуется
Раковины:
Линия подачи (высота): Два отверстия; по вертикали оба находятся примерно на два-три дюйма выше дренажной трубы
Линии подачи (горизонтальные): Два отверстия; одно отверстие на четыре дюйма правее центральной линии; другое на четыре дюйма левее центральной линии
Выпускное отверстие (вертикальное): Около 16-20 дюймов над полом; дренажная труба по вертикальной осевой линии
Крепление (поперечный буфер): От центральной линии, минимум 15 дюймов, рекомендуется 20 дюймов
Крепление (передний буфер): Минимальное расстояние до ближайшего препятствия 21 дюйм; 30 дюймов рекомендуется
Размещение раковины: По вертикали раковина должна находиться примерно на 31 дюйме над полом, измеренная до края раковины
Душ и ванна
Подача душа (вертикальная): 80 дюймов от пола; куда пойдет душевая лейка; насадка для душа будет находиться на высоте от 65 до 78 дюймов над полом
Подача в ванну (вертикальная): Клапаны смесителя должны располагаться на высоте 20-22 дюйма над полом; по горизонтали каждый кран идет на четыре дюйма вправо/влево от центральной линии; носик ванны на четыре дюйма выше края
Сливное отверстие в задней стенке: Установить слив по средней линии; Отверстие для доступа к дренажу может располагаться на расстоянии от 10 до 14 дюймов относительно рамы и иметь ширину от 6 до 8 дюймов
Сливное отверстие (вертикальное): Слив расположен на уровне пола; расстояние равно нулю
Крепление (поперечный буфер): 18-дюймовый минимальный требуемый буфер
Крепление (передний буфер): Минимум 18 дюймов требуется буфер
Обратитесь за помощью к специалисту по сантехнике
Как видите, определить размеры и расположение различных приспособлений может быть непросто.
Часто профессиональный сантехник может прийти и помочь, все имеет смысл и подходит.
Компания Liberty Plumbing предоставляет опытных сантехников в Винчестер и прилегающие районы южной Калифорнии. Позвоните нам сегодня по телефону (951) 760-4215.
Рекомендации и требования к планировке (с фотографиями)
При проектировании собственной ванной комнаты очень важно, чтобы у вас было место для самой важной части комнаты — туалета! Существует несколько вариантов размеров туалетной комнаты, но, как правило, перед туалетом требуется не менее 2 футов свободного пространства.Давайте посмотрим, сколько места у вас есть для ванной комнаты и сколько примерно места вам нужно оставить для туалета.
Проектирование нового дома — увлекательный процесс. Вероятно, впервые в жизни вы можете выбрать точную планировку своего жилого пространства. В рамках этого процесса вы можете рассмотреть возможность добавления туалетной комнаты в свой дом.
Добавление отдельной туалетной комнаты — разумный способ максимально эффективно использовать пространство.
Он добавляет еще один специальный туалет, который освободит вашу главную и гостевую ванные комнаты для их предполагаемого использования.Если вы добавляете одну из этих комнат в свой дом, вам нужно знать наилучшие размеры пространства.
Ширина лучших туалетных комнат обычно не менее 36 дюймов. Кроме того, рекомендуется обеспечить не менее 24 дюймов свободного пространства перед унитазом. Как минимум, вам нужно иметь не менее 15 дюймов пространства от центральной линии унитаза до ближайшего шкафа или стены.
Связанный контент: Сколько стоит добавить половину ванной комнаты? | Раковина для унитаза Combo Ideas | Размеры маленького унитаза | Стоимость установки туалета
Не хотите сделать это сами?
Получите бесплатные расценки без обязательств от профессиональных подрядчиков рядом с вами.
НАЙТИ МЕСТНЫХ ПОДРЯДЧИКОВ
Что такое туалетная комната? Возможно, вы не совсем понимаете, какой должна быть туалетная комната.
Если это так, рекомендуется потратить некоторое время на освежение знаний, прежде чем двигаться дальше в процессе проектирования.
Проще говоря, туалетная комната — это помещение, имеющее одну цель. Это комната, в которой только туалет. Хотя эти комнаты иногда можно расширить, включив в них место для мытья рук и зеркало, их назначение остается прежним.Они обеспечивают место для гостей и членов семьи, чтобы использовать ванную комнату.
Туалетные комнаты могут быть полезными для включения в ваш дом по нескольким причинам. Очевидно, что они дают вам еще одно место для использования туалета. Это полезно, если в вашем доме есть только одна или две ванные комнаты или вы часто принимаете большое количество гостей.
Кроме того, туалетные комнаты позволяют вам держать свою главную и другие ванные комнаты приватными, если вы решите это сделать. Если для вас важна такая конфиденциальность, то создание туалетной комнаты в вашем доме может быть разумной идеей.
Каков минимальный размер туалетной комнаты? При строительстве туалетной комнаты необходимо соблюдать все соответствующие требования строительных норм и правил.
Многие домовладельцы пытаются втиснуть туалетную комнату в другие части своего дома. Однако важно не делать комнату слишком маленькой.
Существует несколько основных требований к минимальным размерам, о которых вам необходимо знать. Вот обзор каждого из них.
Расстояние от осевой линии туалета до ближайшего препятствияСогласно требованиям строительных норм и правил, домовладельцы должны поддерживать расстояние не менее 15 дюймов между туалетом и ближайшим препятствием .Это препятствие может быть стеной, шкафом или другим приспособлением, которое вы хотите установить.
Важно иметь в виду, что вам нужно не менее 15 дюймов с обеих сторон унитаза, а не только один . Это, пожалуй, самое важное ограничение, которое следует учитывать при проектировании туалетной комнаты.
Расстояние от края унитаза до стены Вам также необходимо убедиться, что между дальним краем унитаза и стеной есть пространство не менее 4 дюймов.
Это означает, что вам нужно не менее 30 дюймов пространства для размещения туалета без нарушения требований строительных норм и правил.
Справочник по теме: Туалет слишком далеко от стены?
Пространство перед туалетомТакже существуют минимальные требования к количеству свободного места перед туалетом. Согласно последним строительным нормам перед каждым туалетом и биде требуется 21 дюйм пространства.
Расположение держателя туалетной бумагиК счастью, в строительных нормах нет минимальных требований к месту размещения держателя для туалетной бумаги. Тем не менее, код предлагает рекомендации, которые могут помочь вам оптимизировать планировку вашей туалетной комнаты.
Последние рекомендации предлагают размещать держатель туалетной бумаги на расстоянии от 8 до 12 дюймов от передней части сиденья унитаза . Кроме того, они предлагают разместить держатель на высоте от 26 до 30 дюймов .
Не обязательно стандартный набор размеров для туалетных комнат. Некоторые домовладельцы предпочитают большую туалетную комнату, которая предлагает более удобную функциональность. Если это важно для вас, то ваша туалетная комната может оказаться такой же большой, как маленькая ванная.
Однако большинство домовладельцев, строящих вместо ванной туалетную комнату, делают это в интересах экономии места. Если вы попадаете в эту категорию, то есть рекомендуемые размеры туалетной комнаты, которым, возможно, стоит следовать.
Специалисты рекомендуют делать комнату шириной не менее 30 дюймов . Это сделает вашу туалетную комнату на шесть дюймов шире минимального стандарта. Это позволит людям любого роста более комфортно пользоваться помещением.
Точно так же вы можете оставить немного больше места перед унитазом, чтобы им было удобнее пользоваться. Мы рекомендуем оставлять 24 дюйма свободного пространства вместо минимального стандартного размера 21 дюйм .
Некоторые домовладельцы также устанавливают туалеты в уже существующей главной ванной комнате.Это может быть разумным способом позволить вам или вашему партнеру пользоваться туалетом, не мешая при этом другому человеку.
Если вы планируете добавить туалетную комнату к главной ванной комнате, возможно, вы захотите немного увеличить пространство. Это поможет избежать ощущения клаустрофобии в пространстве, что важно, поскольку вы, вероятно, будете пользоваться туалетной комнатой гораздо чаще, чем если бы она находилась в другом месте вашего дома.
Для достижения наилучших результатов мы рекомендуем увеличить ширину комнаты. Специалисты рекомендуют ширину 42 дюйма, чтобы туалетная комната была максимально комфортной . Это также обеспечит достаточно места для открывания двери, которую вы повесите, не влияя на вашу способность пользоваться туалетом.
Если вы выбрали именно этот маршрут, вам не обязательно добавлять дополнительное пространство перед туалетом.
Вместо этого 24 дюйма свободного пространства, которые мы рекомендовали ранее, должны быть просто идеальными.
При проектировании дома вы можете обнаружить, что у вас есть место только для туалетной комнаты в отдаленном месте.Это может обескураживать, если это место находится далеко от основной дренажной системы вашего дома, например, в подвале.
Однако современные технологии позволяют установить туалетную комнату практически в любом месте вашего дома, где вы хотите. Возможно, вам просто нужно инвестировать в другой тип туалета или другой тип дренажной системы, если вы размещаете туалетную комнату в месте, которое находится далеко от вашей дренажной системы.
Установка туалета-мацератора
Первый способ добиться этого — установить мацерирующий туалет.Когда обычный унитаз смывается, он отправляет отходы через ловушку в сливную линию и в магистраль вашей системы. Мацерационные туалеты работают по-другому.
Туалет для мацерации отправляет отходы в блок для мацерации, расположенный за туалетом на стене. Это разжижает отходы, позволяя выбрасывать их из обычной трубы, которая может быть подключена к основной дренажной линии вашего дома.
Размеры туалета-мацератора
Туалеты-мацераторы очень похожи по размеру на стандартные туалеты.Если вы собираетесь установить его в туалетной комнате, вы должны использовать те же размеры, что и для любого другого туалета. T означает создание комнаты шириной не менее 36 дюймов и оставлением не менее 24 дюймов свободного пространства перед туалетом.
Основное отличие туалета для мацерации состоит в том, что он оснащен бачком, который должен располагаться за самим унитазом. Однако вы можете разместить этот резервуар внутри стены за унитазом. Таким образом, вам не обязательно увеличивать размер вашей туалетной комнаты, чтобы установить мацерирующий туалет.
Еще одна вещь, которую стоит отметить, туалетам для мацерации нужна розетка, чтобы работать, поскольку они питаются от электричества.
Это может быть где угодно в вашей туалетной комнате, если у вас нет душа в комнате. В такой ситуации вам просто нужно убедиться, что выпускное отверстие находится на расстоянии более 40 дюймов от душа.
Установка эжекторного насоса для сточных вод
Еще один вариант, который у вас есть, это установка эжекторного насоса для сточных вод. Это позволяет утилизировать отходы без какой-либо транспортировки.Они способны пропускать твердые частицы, что отличает их от других типов насосов.
В конечном счете, вам придется доплатить за установку одной из этих функций в вашей туалетной комнате. Туалеты для мацерации стоят дороже, чем стандартные модели, а канализационные эжекторные насосы потребуют профессиональной установки.
Тем не менее, современные технологии, подобные этим, позволяют разместить туалетную комнату в любом месте вашего дома. Если вы готовы инвестировать в них, то вы можете разместить свою туалетную комнату именно там, где у вас есть место для нее.
Когда вы думаете о том, где расположить туалетную комнату, одна из идей, которая может прийти в голову, — создать туалетную комнату, выходящую на кухню. Это, безусловно, может быть удобно, так как даст вам и вашим гостям прямой доступ к туалету из той части вашего дома, где наверняка будет много людей.
На самом деле, нет никаких причин, по которым вы не можете сделать туалет, выходящий на кухню. Строительных норм и правил, которые делают это невозможным, нет.Однако, если вы устанавливаете туалетную комнату, выходящую на кухню, рекомендуется также включить в эту комнату раковину.
В конечном счете, ответ на этот вопрос сводится к личным предпочтениям. Да, вы вполне можете разместить туалетную комнату, выходящую на вашу кухню. Тем не менее, рассмотрите недостатки этого, такие как неприятный запах.
Какая средняя высота туалета? Работая над обустройством туалета в небольшом помещении, вы можете задаться вопросом, какой высоты будет установленный вами туалет.
Это, безусловно, стоит учитывать, особенно когда вы проектируете место, где вы установите держатель для туалетной бумаги в комнате.
Сегодня стандартные туалеты имеют среднюю высоту 15 дюймов над землей. Измеряется от земли до верха унитаза. Однако это может быть не тот туалет, который вы решите установить в своей новой комнате.
Существует также класс унитазов, которые часто называют «удобной высотой» или «правильной высотой». Эти чаши расположены на высоте от 17 до 19 дюймов над землей.
Туалеты повышенной комфортности
Унитазы повышенной комфортности имеют реальные преимущества для высоких людей, пожилых людей и людей с ограниченными физическими возможностями. Их намного проще использовать, и они уменьшают проблемы с коленями и спиной, которые могут возникнуть у кого-то при пользовании туалетом.
Если вы предполагаете, что этой туалетной комнатой будут часто пользоваться более высокие люди, пожилые люди или люди с ограниченными физическими возможностями, вы можете установить туалет комфортной высоты.
Это, безусловно, сделало бы комнату более удобной для них.
При этом вы должны планировать, чтобы ваш унитаз имел высоту от 15 до 19 дюймов. Основывайте свои планы на этом измерении, и вы вряд ли столкнетесь с какими-либо проблемами с размерами позже в процессе строительства.
Маленькая ванная комната по сравнению со стандартной туалетной комнатой
Вам также может быть любопытно, как размер средней небольшой ванной комнаты соотносится со стандартными размерами туалетной комнаты.Проходя процесс планирования, вы можете обнаружить, что всего несколько дополнительных дюймов пространства позволят вам установить полноценную ванную комнату.
В среднем небольшие ванные комнаты имеют размер примерно 5 на 8 футов . Однако минимальный размер, который вам нужен для ванной комнаты с душем, составляет 900 квадратных дюймов. Подумайте о том, чтобы сравнить это с размером запланированной туалетной комнаты и посмотреть, стоит ли дополнительное пространство преимущества полноценной ванной комнаты.
Во время исследований вы можете встретить словосочетание «дамская комната».Это практически идентично туалетной комнате. Единственное существенное отличие состоит в том, что туалетные комнаты чаще всего располагаются возле входа в дом или квартиру. Однако, как и туалетные комнаты, они также обычно включают только туалет и раковину.
Стандартный размер дамской комнаты составляет 20 квадратных футов . Ваш может быть меньше или больше, чем это. Однако необходимо оставить не менее 32 дюймов свободного пространства, чтобы дверь комнаты могла открыться . Кроме того, вам необходимо обеспечить не менее 21 дюйма свободного пространства перед унитазом и раковиной для пространства для ног.
Не хотите сделать это сами?
Получите бесплатные расценки без обязательств от профессиональных подрядчиков рядом с вами.
НАЙТИ МЕСТНЫХ ПОДРЯДЧИКОВ
Связанные вопросы Какого размера половина ванной комнаты? Полуванные — это ванные комнаты, в которых есть только туалет и раковина.
Они должны быть размером не менее 3 х 6 футов с щелевой дверью шириной от 24 до 28 дюймов в середине одной из самых длинных стен.Установка половины ванной комнаты может быть еще одной альтернативой установке туалетной комнаты, которую вы рассматривали. Это даст вам немного больше функциональности в обмен на немного больше места.
При исследовании туалетной комнаты вы можете встретить термин «уборная». Когда увидишь, не волнуйся. Термин «уборная» означает то же самое, что и туалетная комната. Вы должны просто считать термины взаимозаменяемыми, поскольку вы продолжаете свое исследование.
Ознакомьтесь с другими нашими руководствами по размерам ванной комнаты
Келлан Янсен
Келлан — автор контента, который специализируется на всем, что можно сделать своими руками. Когда он не сидит за клавиатурой, ему нравится проводить время со своими домашними животными, играть музыку и увлекаться баскетболом. Он надеется сделать ваши проекты по благоустройству дома немного проще.![]()
Недавно опубликовано
ссылка на «Какой высоты должен быть мой забор?» (Конфиденциальность, соседские и собачьи заборы) ссылка на стоимость замены двигателя вентилятора конденсатора переменного токаСтоимость замены двигателя вентилятора конденсатора переменного тока
Многие домохозяйства считают кондиционеры жизненно важными приборами, поскольку они обеспечивают комфортное охлаждение по требованию.Идея поломки кондиционера посреди лета — это…
Жилые ванные комнаты Требования и советы по дизайну
Если вы думаете о перепланировке своей ванной комнаты, вы не одиноки. Реконструкция ванной комнаты — один из лучших проектов по благоустройству дома в США, и на то есть веские причины. Хорошо спроектированная ванная комната может оказать огромное влияние на ваше удовольствие от вашего дома.
Однако существует множество соображений, которые учитываются при проектировании ванной комнаты, которая не только прекрасно выглядит, но и эргономична и безопасна.
Дизайн ванной комнаты может показаться достаточно простым, учитывая, что обычно это небольшое пространство, но размер может быть обманчивым. Я призываю вас обратиться за помощью к опытному дизайнеру интерьера, чтобы убедиться, что ваша ванная комната идеально спроектирована в соответствии с вашими потребностями и соответствует лучшим практикам.
Ознакомьтесь с 17 наиболее важными рекомендациями по планировке ванной комнаты и нормативными требованиями. Я буду вникать в размеры, расстояние между стенами и светильниками, высоту потолка и многое другое. Чтобы дать вам полную картину, я расскажу о строительных нормах и правилах для ванных комнат, а также о рекомендациях по дизайну ванных комнат от Национальной ассоциации кухонь и ванн, которые служат превосходными практическими рекомендациями.
В чем разница между строительными нормами и инструкциями НКБА?
Строительные нормы и правила — это закон
Строительные нормы и правила являются официальными правилами безопасности зданий.
Любой, кто занимается строительным проектом (включая домовладельцев, выполняющих работы своими руками), по закону обязан следовать этим правилам. Для всех, кроме самых незначительных косметических строительных проектов, городские инспекторы будут проверять, чтобы убедиться, что соблюдались строительные нормы и правила.
Международные строительные нормы и правила обеспечивают единообразие
Большинство городов и муниципалитетов принимают решение о принятии набора универсальных строительных норм и правил для жилищного строительства, которые разрабатываются и обновляются Советом по международным нормам (ICC).В совокупности они называются Международным жилым кодексом (IRC). Муниципалитеты могут накладывать более конкретные правила поверх IRC или иным образом вносить поправки в определенные правила.
При планировании проекта IRC является хорошей отправной точкой, но всегда проверяйте местные коды. Здесь, в Сиэтле, например, у нас есть Жилищный кодекс Сиэтла (SRC), который включает множество поправок к IRC.
NKBA предлагает передовой опыт проектирования ванных комнат
Национальная ассоциация кухонь и ванных комнат (NKBA) публикует рекомендации по планированию, чтобы помочь дизайнерам интерьеров создавать ванные комнаты, которые одновременно функциональны и безопасны.Это не юридические требования, такие как строительные нормы и правила, но они чрезвычайно полезны для обеспечения того, чтобы ванная комната была не только безопасной, но и приятной в использовании. Члены NKBA, такие как CRD Design Build, регулярно обращаются к этим рекомендациям, а также к нашему собственному опыту, чтобы проектировать ванные комнаты, которые будут столь же функциональными, сколь и красивыми.
Строительные нормы и правила для ванных комнат и рекомендации NKBA
Хотя вы всегда должны следовать своему местному кодексу, вы обнаружите, что руководства NKBA либо берут код и строят его, либо предлагают рекомендации, о которых код ничего не говорит.Ниже приводится краткое изложение того, что я считаю 16 наиболее важными рекомендациями NKBA по дизайну ванных комнат.
Я также включил соответствующие коды для сравнения.
1. Проемы входных дверей
IRC
- IRC ничего не говорит о том, насколько широкими должны быть двери в ванную.
НКБА
- Ширина дверей должна быть не менее 32 дюймов.
- Для ширины в свету 32 дюйма ширина двери (от косяка до косяка) должна быть 34 дюйма.
- Поскольку ширина двери 34 дюйма не является стандартной, большинство дизайнеров задают дверь шириной 36 дюймов, что обычно не является специальным заказом.
- Чтобы соответствовать универсальным стандартам дизайна ADA, запланируйте 34-дюймовый проем в свету или 36-дюймовую дверь.
- NKBA делает исключение для ситуаций, когда невозможно установить 34-дюймовую дверь, допуская при таких обстоятельствах 24-дюймовую дверь.
- ПРИМЕЧАНИЕ. Если вы переделываете существующую ванную комнату, в большинстве городов допускается сохранение существующей ширины двери, даже если в них действуют местные правила, требующие более широкой двери.
Однако, если местонахождение двери перемещается, обычно приходится следовать коду.
2. Блокировка двери
IRC
- Опять же, у IRC нет никаких требований относительно того, что двери в туалете могут ударяться друг о друга.
НКБА
- Хороший дизайн требует, чтобы входная дверь не упиралась в дверь душа, дверцы шкафа или ящики.
- ПРИМЕЧАНИЕ. Хороший способ обеспечить соблюдение этого правила даже в небольшой ванной комнате — спроектировать входную дверь, которая открывается в прихожую, а не в ванную.
3. Высота потолка
IRC
- Ванные комнаты должны иметь минимальную высоту потолка 80 дюймов перед светильниками, что меньше высоты потолка 90 дюймов, требуемой в большинстве комнат.
- Площадь 30 x 30 дюймов перед насадкой для душа также должна быть 80 дюймов в высоту.
НКБА
- В данном случае NKBA нечего добавить к требованию IRC.

- Рекомендуемая высота потолка над раковинами и прочей сантехникой (в основном там, где нельзя ходить) всего 60 дюймов.
4. Свободная площадь
IRC
- Расстояние между унитазом, биде и раковиной и противоположной стеной или другим приспособлением должно быть не менее 21 дюйма.
- Перед входом в душ требуется не менее 24 дюймов.
НКБА
- Строительные нормы требуют только 21 дюйм площади перед туалетом или раковиной, но это кажется довольно тесным, поэтому рекомендация NKBA составляет 30 дюймов.
- ПРИМЕЧАНИЕ. Если вы переделываете старую ванну шириной всего 5 футов, вам может хватить свободного пространства размером 21 или 24 дюйма.Однако подвесной унитаз может помочь освободить пространство.
5. Расстояние между раковинами
IRC
- Минимальное расстояние от центральной линии раковины до стены 15 дюймов.
- Расстояние между краем отдельно стоящей или подвесной раковины и стеной должно составлять 4 дюйма (это облегчает уборку между краем умывальника и стеной).

НКБА
- NKBA рекомендует 20 дюймов от центра раковины до ближайшей стены или другого высокого препятствия.Это дополнительное пространство для локтей делает более удобным мытье рук.
6. Расстояние между двойными раковинами
IRC
- Расстояние между центральными линиями двух раковин должно быть не менее 30 дюймов.
- Отдельно стоящие или подвесные раковины должны иметь расстояние не менее 4 дюймов между собой.
НКБА
- NKBA рекомендует расстояние между центральными линиями двух раковин не менее 36 дюймов. Если вы сомневаетесь, используйте раковины меньшего размера, чтобы между ними было больше места.Это дополнительное пространство гарантирует, что вы не столкнетесь локтями с человеком, пользующимся раковиной рядом с вами.
7. Высота умывальника
IRC
- Высота умывальника не требуется.
НКБА
- Тумбы должны быть высотой 32–34 дюйма.
В прежние времена 32-дюймовые туалетные столики были нормой, предназначенной для размещения как детей, так и взрослых. В настоящее время стандартная практика заключается в том, чтобы настраивать их так, чтобы они были удобными для взрослых пользователей. из механизма, встроенного в тщеславие.
8. Уголки столешницы
IRC
- IRC ничего не говорит об этом.
НКБА
- Углы столешницы не должны быть острыми.
- В целях безопасности должны быть установлены скошенные или закругленные углы.
9. Размер душа
IRC
- Минимальный размер внутреннего душа составляет 30 x 30 дюймов или 900 квадратных дюймов, в который должен поместиться диск диаметром 30 дюймов. (В большинстве случаев насадка для душа также должна находиться внутри этого воображаемого диска.)
НКБА
- Минимальный размер кода 30 x 30 дюймов, но квадрат 36 дюймов намного удобнее.

10. Поручни
IRC
- Для поручней не существует предписаний международного кодекса.
НКБА
- Планировочные поручни. Даже если они вам сейчас не нужны, поручни (или блокировка в стенах) должны быть установлены на высоте 33–36 дюймов над полом в душе.
11. Нескользящие полы
IRC
- Нет международных требований к типам напольных покрытий.
НКБА
- NKBA рекомендует нескользкие полы. Не укладывайте скользкий пол в ванной комнате (включая пол в душе). Полы из керамической плитки должны иметь коэффициент трения (COF) не менее 0,5 во влажном состоянии.
12. Размещение туалета
IRC
- Минимальное расстояние 15 дюймов требуется от осевой линии унитаза до любого приспособления для ванны, стены или другого препятствия.
НКБА
- Дайте туалету немного места.
Расстояние от осевой линии унитаза до ближайшей стены или препятствия должно быть не менее 18 дюймов. Минимальное расстояние в 15 дюймов используйте только в том случае, если у вас очень маленькая ванная комната и вы не можете разместить дополнительное расстояние.
13. Туалетные отсеки
IRC
- Минимальный размер отдельного туалета 30 на 60 дюймов.
НКБА
- Когда речь идет о туалетных отсеках (также известных как ватерклозеты или туалеты), NKBA рекомендует большее пространство 36 x 66 дюймов.
- Если у вас есть поворотно-откидная дверь или дверь-створка, вы можете использовать эти минимальные размеры. Если дверь распахивается, прибавьте ширину двери к глубине унитаза.
14. Аксессуары для ванной комнаты
IRC
- IRC не требует размещения каких-либо аксессуаров.
НКБА
- NKBA рекомендует размещать аксессуары с учетом эргономики.

- Зеркало должно быть размещено над раковиной с учетом высоты глаз, держатель для туалетной бумаги должен находиться на расстоянии 8–12 дюймов от края унитаза, а держатели для полотенец и мыльницы должны быть удобно расположены.
15. Вентиляция
IRC
- Минимальная вентиляция ванной комнаты должна быть через окно площадью не менее 3 кв. футов, из которых 50% работают, или через механическую систему вентиляции не менее 50 куб. футов в минуту (куб. футов в минуту), выведенную наружу.
НКБА
- В каждой ванной комнате должен быть установлен вытяжной вентилятор, выходящий наружу из дома.
- Если ваша душевая кабина или туалет полностью закрыты, они считаются отдельной комнатой и должны иметь собственные вытяжные вентиляторы.
См. также: Практическое руководство по размещению окон
16. Отопление
IRC
- Во всех ванных комнатах должен быть соответствующий источник тепла для поддержания минимальной температуры в помещении на уровне 68° по Фаренгейту (20° по Цельсию).

НКБА
- NKBA рекомендует, чтобы в ванной комнате было примерно на 10 градусов теплее, чем в остальной части дома, когда кто-то принимает ванну.
- При необходимости рассмотрите возможность установки дополнительного источника тепла в ванной комнате.
Все вместе
Дизайну ванной комнаты и планированию пространства часто не уделяют должного внимания. Если вы планируете перестроить свою ванную комнату или добавить ванну в свой дом, эти 16 эмпирических правил — отличное начало. Но не останавливайтесь на достигнутом. Я призываю вас поговорить с опытным дизайнером интерьеров, чтобы он по-настоящему обустроил вашу новую ванную комнату (и удостоверился, что вы не нарушаете местные строительные нормы и правила). Удивительно, как продуманно спланированная ванная комната может добавить вам удовольствия от дома и качества жизни.
Мои коллеги по дизайну интерьера и я здесь, в CRD Design Build, будем рады обсудить ваши планы реконструкции ванной комнаты.
Пожалуйста, не стесняйтесь, напишите нам, чтобы обсудить ваши мечты о вашей ванной комнате. Мы хотели бы быть полезными.
Сколько места вам нужно вокруг туалета?
Если вы переделываете ванную комнату или проектируете ее для нового дома, то размещение туалета является одним из самых важных решений, которые вы принимаете. Каждый всегда хочет прыгнуть вперед и начать выбирать плитку, светильники, цвета, отделку и мебель.Но первым шагом в проектировании ванной комнаты является планировка. И мы всегда начинаем с туалета. Итак, сколько места вам нужно вокруг туалета?
Область вокруг туалета очень важно правильно оформить, потому что это проблема с кодом. Существуют коды, которые определяют, сколько места вам нужно по бокам и перед туалетом. Если вы хотите, чтобы дизайн ванной комнаты был законным, то планировка очень важна. Особенно, если ванная маленькая. Положение унитаза является одним из основных факторов, определяющих расположение всего остального в ванной комнате.
Вы можете исключить из ванной такие вещи, как душ или ванна, и это все равно будет ванной комнатой. Но единственное, что у вас обязательно должно быть, это туалет. И это расположение влияет на другие очень важные вещи, такие как стоки, вентиляционные отверстия и водопроводы. Кроме того, есть и другие проблемы, такие как тип туалета, который вы будете использовать, потому что они бывают разных размеров. Это нужно учитывать.
В этой статье мы рассмотрим, сколько места вам нужно вокруг туалета, а также некоторые рекомендации, которые мы используем при проектировании ванной комнаты.
Требования к пространству
Перед туалетом и с обеих сторон должно быть свободное пространство. Эти требования предотвращают попадание вещей слишком близко к бокам и спереди унитаза.
Кроме того, трап слива должен находиться на фиксированном расстоянии от задней стены. Очень важно выбрать правильное положение слива, потому что, если он будет слишком близко к стене, унитаз не подойдет.
Также необходимо выполнить черновую линию подачи воды и запорный клапан.В этой статье мы не будем рассматривать требования к сантехнике, но это еще одна вещь, которую вы должны учитывать. Особенно, если вы сами занимаетесь сантехническими работами.
Строительные нормы и правила требуют минимального зазора сбоку и спереди от туалета, который вы должны соблюдать, если хотите, чтобы ваша ванная была законной. В дополнение к местным нормам Национальная ассоциация кухонь и бань (NKBA) публикует руководящие принципы, которые расширяют требования кодекса, чтобы сделать ванные комнаты более удобными. Мы стараемся использовать эти рекомендации, потому что хотим, чтобы наши ванные были не только легальными, но и удобными.Вообще говоря, минимальные требования к коду здесь, в Нью-Джерси, имеют тенденцию быть немного жесткими.
Если вы проектируете ванную комнату для людей с ограниченными возможностями, вам необходимо руководствоваться стандартами доступного дизайна, установленными Законом об американцах-инвалидах.
Закон еще больше расширяет пространство, необходимое для туалета, и добавляет некоторые другие средства безопасности, такие как захватные поручни. В этой статье не рассматриваются требования ADA. Посетите сайт ADA.gov, чтобы узнать о них больше.
Совет профессионала: Всегда уточняйте требования кодов в местном строительном отделе.Измерения и размеры, о которых мы здесь говорим, являются общими рекомендациями и могут не соответствовать вашим местным нормам.
Туалет в полноценной ванной. Минимум 15 дюймов требуется от центра унитаза до умывальника и 15 дюймов от центра унитаза до стены.
Минимальные требования к пространству для туалета
Количество места, необходимого для туалета, зависит от того, следуете ли вы только правилам, требующим минимальных зазоров, или придерживаетесь рекомендаций NKBA по удобному дизайну.Мы рекомендуем руководство NKBA, если у вас есть место.
Когда вы проектируете ванную комнату и размещаете все элементы с сантехникой, вы должны ссылаться на местные строительные нормы и правила.
Обычно это основано на Международном жилом кодексе (IRC) и Международном сантехническом кодексе (IPC) или Едином сантехническом кодексе (UPC). Эти коды регулируют свободное пространство вокруг туалета и других предметов в номере.
Необходим хороший план. Не начинайте черноволосую уборку, пока у вас не будет плана, который пройдет проверку кода.Если вы получили разрешение, а мы рекомендуем вам это сделать, то ваш план должен быть рассмотрен и одобрен строительным отделом.
Требования к жилому зданию и сантехническим нормам одинаковы:
- Минимальный зазор перед унитазом 21 дюйм. Требуется для всех принадлежностей вашей ванной комнаты, включая душ, туалетный столик или раковину и ванну.
- Минимальное расстояние от центра унитаза до обеих боковых стенок 15 дюймов .При проектировании места, где будет стоять ваш туалет, вы должны предусмотреть площадь пола не менее 30 дюймов в ширину и 60 дюймов в длину.
- Минимальное расстояние между центрами соседних светильников 30 дюймов .
Этот код относится к другим приспособлениям рядом с унитазом, например к биде.
Совет для профессионалов: Помните, что расстояние, утвержденное кодом, относится к готовой стене, а не к необработанной стойке. Поэтому, если гипсокартон не был установлен, и вы измеряете каркас, не забудьте добавить толщину гипсокартона.Мы обычно используем 1/2 дюйма в ванной комнате. На бумаге вам нужно убедиться, что вы отметили 15 1/2 дюймов от центра вашего унитаза до шпильки.
Напор измеряется от передней части унитаза, а не от слива. На это влияет унитаз, который вы покупаете, поэтому убедитесь, что вы сначала выбрали унитаз, а затем получите тот, который соответствует требованиям кода. Если вы установите очень длинную чашу, но у вас останется место только для круглой, вы можете не пройти проверку.
Полностью оборудованная ванная комната с одной раковиной, туалетом и ванной/душем.
Рекомендации НКБА по очистке
Требования кодекса ванной комнаты предусматривают достаточно места, чтобы пользоваться туалетом.
Пространства тесные и, как правило, хорошо подходят даже для небольшой ванной комнаты, но они не идеальны. Я рекомендую вам использовать рекомендации NKBA, если вы можете.
Рекомендации, которые я люблю использовать в дизайне ванной комнаты вокруг унитаза, следующие:
- Зазор перед унитазом 30 дюймов. Это обеспечивает более комфортное пространство для ног и позволяет использовать более длинный туалет.Вы никогда не знаете, какого роста кто-то, кто может пользоваться туалетом, поэтому я предпочитаю иметь как можно больше места перед унитазом.
- Расстояние от центра унитаза до боковой стены увеличено до 18 дюймов.
- Расстояние между центральными линиями моих светильников увеличено до 36 дюймов.
Несмотря на то, что рекомендации NKBA не являются требованиями и кажутся немного больше, чем код, это большая разница в том, как они воспринимаются.Я хочу, чтобы мои ванные комнаты были удобным пространством для использования, и даже несколько дополнительных дюймов вокруг унитаза могут иметь значение.
Имейте в виду, что даже эти рекомендации NKBA являются всего лишь руководством. И хотя размеры относятся и к главной ванной комнате, они используются в основном для небольших ванн. В главных ванных комнатах обычно намного больше места, поэтому минимальные зазоры редко являются проблемой.
Что такое центральная линия туалета
Рекомендации по расстоянию между туалетами измеряются от центра кишечника, который часто называют центральной линией.
Центральная линия означает проведение воображаемой линии по центру приспособления. Это в основном разделяет туалет пополам со сливом в центре. Мы используем размеры туалета по осевой линии, которые измеряются из стороны в сторону, а не спереди назад.
Передний ориентир расстояния измеряется от кончика кишки до стенки. Это не имеет ничего общего с центральной линией, так что не путайте их. Если вы измерите передний выступ до центра кишечника, вы окажетесь слишком коротким.
Полностью оборудованная ванная комната с одной раковиной, удлиненным туалетом и комбинированной ванной и душем.
Различия формы чаши
Унитазы бывают разных форм, что может немного усложнить планировку ванной комнаты.
Удлиненные миски обычно считаются более удобными, но круглые миски занимают меньше места. Как правило, туалеты с круглым кишечником простираются на 25–28 дюймов от стены. Удлиненные кишечные туалеты имеют длину от 29 до 31 дюйма. Поскольку в большинстве ванных комнат есть распашная дверь, когда места мало, каждый сантиметр на счету. По этой причине удлиненные унитазы чаще используются в главных или больших ванных комнатах, а круглые — в маленьких ванных комнатах.
При оформлении маленькой ванной комнаты я рекомендую выбирать специальные светильники. Каждый дюйм действительно имеет значение, когда пространство ограничено, поэтому разница в дюйм или два может иметь значение. Если ванная комната большая, вам, вероятно, даже не придется думать о лишнем дюйме длины кишечника, но это роскошь. В большинстве домов есть небольшие ванные комнаты. Особенно старые дома.
Туалеты со временем стали немного больше, поэтому, если вы делаете ремонт ванной комнаты в старом доме, имейте в виду, что старый туалет, возможно, был меньше, чем тот, который вы использовали, поэтому, возможно, потребуется отрегулировать место для современного туалета.
Должен ли я просто следовать рекомендациям?
Когда я разрабатываю новую планировку ванной комнаты, я смотрю на рекомендации как на руководство. Требования к коду — это отдельная история. Вы должны соблюдать их, чтобы планировка вашей ванной комнаты была законной. Но мне они все малы. Даже рекомендации НКБА кажутся мне маленькими. Если у вас очень мало места, то вы ничего не можете сделать. И, честно говоря, большинство людей попадают в эту категорию, если вы делаете ремонт. Если вы не можете сделать комнату больше, вы мало что можете сделать.Но если вы проектируете новый дом или ремонтируете дом до каркаса, вы можете внести изменения.
В этом случае я рекомендую делать все немного больше. Стороны унитаза для меня не так важны, поэтому 16-18 дюймов от центральной линии вполне достаточно.
Но перед туалетом мне нравится иметь место. В этом случае мне обычно нравится использовать 24–30 дюймов. Чего я хочу, так это достаточно места, чтобы удобно ходить перед туалетом, если мне нужно.
Я тоже предпочитаю круглую кишку.Я думаю, что они выглядят лучше и достаточно удобны. У меня никогда никто не жаловался на них. В любом случае, современные туалеты, как правило, больше. Старомодные круглые кишки были немного малы, но новые модели хороши. Это помогает мне с дизайном ванной комнаты, потому что круглый кишечник дает мне пару дюймов спереди.
Ванная комната в современном стиле с одной раковиной, туалетом и душевой кабиной.
На каком расстоянии от стены должен быть туалет?
Еще один параметр, который следует учитывать при планировке ванной комнаты, — это расстояние, на котором должен располагаться слив для стока от стены.Это немного варьируется в зависимости от туалета, но в целом мы рассчитываем 12-14 дюймов от готовой стены до центра слива.
Не забывайте измерять от готовой стены, а не от стойки. Если вы измеряете от стержня, а затем добавляете гипсокартон, плитку или стеновые панели, ваш туалет может быть слишком близко к стене или вообще не подходить.
Также не забывайте измерять центр сливного отверстия, а не край.
Резюме: Сколько места вам нужно вокруг туалета?
Если вы переделываете ванную комнату или проектируете ее для нового дома, то размещение туалета является одним из самых важных решений, которые вы принимаете.Каждый всегда хочет прыгнуть вперед и начать выбирать плитку, светильники, цвета, отделку и мебель. Но первым шагом в проектировании ванной комнаты является планировка. И мы всегда начинаем с туалета. Итак, сколько места вам нужно вокруг туалета?
Область вокруг туалета очень важно правильно оформить, потому что это проблема с кодом. Существуют коды, которые определяют, сколько места вам нужно по бокам и перед туалетом. Если вы хотите, чтобы дизайн ванной комнаты был законным, то планировка очень важна.
Особенно, если ванная маленькая. Положение унитаза является одним из основных факторов, определяющих расположение всего остального в ванной комнате. Вы можете исключить из ванной такие вещи, как душ или ванна, и это все равно будет ванной комнатой. Но единственное, что у вас обязательно должно быть, это туалет. И это расположение влияет на другие очень важные вещи, такие как стоки, вентиляционные отверстия и водопроводы. Кроме того, есть и другие проблемы, такие как тип туалета, который вы будете использовать, потому что они бывают разных размеров. Это нужно учитывать.
Если у вас есть какие-либо вопросы или комментарии, напишите нам в любое время. Мы хотели бы услышать от вас.
22 типа туалетов и опций для вашей ванной комнаты (подробное руководство по покупке)
Нужен новый туалет для вашего дома или нового дома? У вас есть варианты; много вариантов. Существует 22 различных типа туалетов, которые мы подробно описали здесь. Узнайте все, что вам нужно знать об этом необходимом приспособлении для вашего дома.
При покупке унитаза легко растеряться в огромном количестве вариантов.В дополнение к типам унитазов, вы должны сделать и другие выборы, включая стиль унитаза, технологию смыва, дизайн унитаза и многое другое.
Воспользуйтесь нашим руководством для покупателя ниже, чтобы лучше понять каждый вариант, чтобы сделать покупку унитаза намного проще.
Родственный: Типы туалетных щеток | Типы туалетных фланцев | Типы туалетных вантузов » вики полезно Виды туалетной бумаги | Размеры туалета | Стоимость туалета
I. Руководство по покупке туалетов
А.Туалет Тип
youtube.com/embed/wr8EAedrgdk?feature=oembed» frameborder=»0″ allow=»accelerometer; autoplay; clipboard-write; encrypted-media; gyroscope; picture-in-picture» allowfullscreen=»»/>
Когда дело доходит до покупки нового унитаза, первое, что вам нужно сделать, это выбрать тип унитаза.
Тип туалета определяется основным методом, который туалет использует для смыва и удаления отходов. Тип унитаза, который вы выберете, определяет наилучший стиль и технологию смыва.
Основные варианты типов туалетов: самотечные, напорные, с двойным циклоном и безводные.
1. Самотечный туалет
Источник: Бенджамин Франклин Сантехника
Самый распространенный (и самый старый современный) тип туалета в Северной Америке, самотечной туалет просто использует гравитацию для смывания отходов.
Бачок унитаза содержит воду, которая стекает в чашу при нажатии смывного клапана. Вода, проходящая через чашу, выталкивает отходы через сифон.
В большинстве самотечных туалетов используется сифонное действие чаши. Движение этого смыва предназначено для облегчения очистки чаши.
Самотечные туалеты отличаются тихим смывом. Их небольшой список движущихся частей означает, что техническое обслуживание минимально, а ремонт прост.
2.Напорный туалет
Источник: Ель
№Изюминкой напорного унитаза является мощный смыв.
Система сжатого воздуха нагнетает воду из бака в бачок с гораздо большей мощностью, чем в самотечном туалете.
Хотя эта система смыва намного громче самотечного туалета, она также намного эффективнее. Отходы смываются гораздо быстрее и с большей силой.
Засоры гораздо реже встречаются в туалетах с принудительным напором.Это хороший выбор для больших семей, где часто пользуются туалетом.
3. Туалет с двойным смывом
Источник: TreeHugger
Относительно новый тип унитаза, унитаз с двойным смывом быстро набирает популярность благодаря своим преимуществам экономии воды.
Туалеты с двойным смывом представляют собой смесь туалетов с самотечной и напорной подачей. Вы можете выбрать половинный или полный смыв при каждом опорожнении чаши.
Половинный смыв очищает унитаз с самотечной системой.Используйте этот смыв для жидких отходов. Для твердых отходов полный смыв очищает унитаз с помощью системы, поддерживающей давление.
Туалеты с двойным смывом быстро приближаются к туалетам с самотечной и напорной подачей по продажам.
4. Туалет с двойным циклоном
Источник: Поставка в мае
Двойные циклонные туалеты — это относительно новая технология, которая еще не прижилась (хотя есть большая вероятность, что это произойдет в ближайшее время).
В этих туалетах расходуется минимальное количество воды на один смыв, но при этом обеспечивается невероятная мощность смыва.
Вместо использования отверстий в кромке чаши для подачи воды для смыва (как во всех других типах туалетов) два сопла вдоль края обеспечивают смыв в туалете с двойным циклоном.
Форсунки в целом обеспечивают более эффективный смыв. Несмотря на то, что экономия воды при каждом смыве минимальна, они, несомненно, существенно влияют на ваш ежемесячный счет за воду.
5. Туалет без воды
Источник: Туалетный
Автономные безводные туалеты доступны для ситуаций без воды или водопровода.
Хотя они довольно редко встречаются в постоянных домах, они регулярно используются на рабочих площадках, во время проектов по реконструкции дома, в походах и в подобных ситуациях.
Автономные безводные агрегаты не используют воду. Вместо этого отходы собираются в емкость под сиденьем унитаза.
* Компостные туалеты , разновидность безводных туалетов, переживают всплеск популярности благодаря зеленой жизни, автономности и маленькому домашнему перемещению.
B. Тип унитаза
После того, как вы определились с типом туалета, пришло время подумать о том, какой стиль туалета вы предпочитаете.
Стиль туалета состоит из двух факторов. Во-первых, из скольких частей сделан унитаз? Во-вторых, как унитаз крепится к полу или к стене?
Три варианта стиля туалета: цельный, состоящий из двух частей и подвесной.
1. Цельный унитаз
Источник: Фирменное оборудование
Как видно из названия, цельный унитаз сделан из цельного куска материала.
Чаще всего из керамики, материал включает в себя встроенную чашу, бак и сифон. Большинство из них также оснащены сиденьем для унитаза.
Цельная конструкция облегчает установку и обслуживание. Он также обеспечивает бесшовную посадку между чашей и резервуаром, что значительно упрощает очистку.
2. Туалет из двух частей
Источник: Фирменное оборудование
Двухкомпонентный унитаз состоит из двух частей, которые затем собираются.
Две части: бачок унитаза и чаша унитаза.Вы можете купить их вместе в виде набора или смешивать и сочетать по своему вкусу.
Сиденье для унитаза обычно приходится покупать отдельно.
Хотя туалеты, состоящие из двух частей, немного сложнее чистить, они обычно более эффективны. Они также более долговечны, поскольку большинство отдельных частей можно заменить по мере необходимости (в отличие от цельной конструкции).
Простота и долговечность составных унитазов сделали их выбором номер один для большинства домов в Северной Америке.
3. Настенный унитаз
Источник: Pinterest
Подвесные унитазы не совсем обычное явление в жилых ванных комнатах.Скорее всего, вы увидите их в коммерческой среде.
Эти унитазы оснащены подвесным унитазом и кнопкой смыва, надежно прикрепленной к стене. Бачок унитаза спрятан за стеной.
Основной причиной выбора подвесного унитаза является его небольшой размер. Этот стиль туалета является выбором номер один для небольших ванных комнат, где пространство в большом почете.
Подвесные унитазы экономят до одного фута площади пола.
Их обтекаемый дизайн также упрощает очистку.
C. Промывочный тип
Теперь, когда вы сузили свои варианты до определенного типа туалета и стиля туалета, пришло время взглянуть на тип смыва.
Возможные варианты: одинарный, двойной и бесконтактный смыв.
1. Туалет с одинарным смывом
Источник: Лоус
Туалет с одинарным смывом имеет только одну настройку смыва.
Просто нажмите на промывочный клапан, и каждый раз будет поступать одинаковое давление и размер промывки.
Туалеты с одинарным смывом являются наиболее популярным вариантом. Это означает, что они доступны в самом широком диапазоне конструкций (обсуждается ниже в разделе «D.
Варианты конструкции туалета»).
2. Туалет с двойным смывом
Источник: KOHLER
Туалет с двойным смывом поставляется с двумя настройками смыва.
Слегка нажмите на кнопку или рычаг смыва для половинного смыва жидких отходов. Нажмите сильнее, чтобы полностью смыть твердые отходы.
Туалет с двойным смывом гораздо более эффективен, чем унитаз с одинарным смывом.Недостатком является то, что они дороже, немного сложнее в обслуживании и менее распространены.
3. Туалет с бесконтактным смывом
Источник: SteveJenkins.com
Туалеты с бесконтактным смывом чаще всего можно увидеть в общественных туалетах.
Вместо того, чтобы нажимать на кнопку, рычаг или другой сливной клапан, унитаз автоматически смывает воду, когда обнаруживает, что вы им пользуетесь.
В большинстве жилых унитазов с бесконтактным смывом используется датчик движения в верхней части бачка унитаза.
Проведите рукой над датчиком, чтобы смыть его.
Главное преимущество унитаза с бесконтактным смывом — чистота. Это сводит к минимуму распространение микробов, так как вам никогда не придется прикасаться к унитазу во время использования.
Большинство унитазов с бесконтактным смывом работают от батареек. Вы можете легко превратить большинство туалетов с одинарным или двойным смывом в бесконтактную модель.
4. Смывометр
Туалет со смывомером оснащен так называемым механизмом смыва со смывомером. Они обычно не используются в жилых ванных комнатах, но обычно используются в ванных комнатах коммерческих зданий.
Смывной механизм для унитазов без бачка. Преимущество заключается в более высоком давлении промывки, которое он создает, что необходимо в коммерческих условиях. Возможно, более сильный смыв был бы полезен в жилых ванных комнатах, но для этих типов туалетов требуется больший запас воды.
D. Варианты конструкции туалета
youtube.com/embed/MyTUl2M8YTY?feature=oembed» frameborder=»0″ allow=»accelerometer; autoplay; clipboard-write; encrypted-media; gyroscope; picture-in-picture» allowfullscreen=»»/>
Самое интересное – выбрать дизайн туалета.
В то время как категории в первую очередь связаны с внутренним устройством и технологиями вашего унитаза, дизайн унитаза связан с его внешним видом и эстетической привлекательностью.
Выберите из множества цветов, размеров, форм чаши, сидений для унитаза, стилей сифонов и ручек для смыва, чтобы настроить внешний вид вашего унитаза.
1. Цвет
Источник: PlumbingSupply.com
Традиционно большинство туалетов имеют белый или почти белый цвет.
Белые унитазы по-прежнему являются стандартом, но теперь доступны варианты, включающие практически любой цвет, который вы можете придумать.
Хотя можно заказать яркие цвета, экзотические цвета и даже узоры, большинство стандартных туалетов по-прежнему имеют приглушенные тона.
Общие цвета включают светлые оттенки синего, желтого, серого, коричневого, розового и зеленого.
Цвет вашего унитаза во многом определяет настроение и внешний вид всей ванной комнаты в целом.
2. Размеры
Источник: Карта
Размеры унитаза в основном зависят от высоты унитаза и сиденья.
Несмотря на то, что унитазы бывают разной длины и ширины, в этих измерениях гораздо меньше места для маневра, чем в высоте унитаза.
Высота туалета влияет не только на его внешний вид, но и на удобство.
Те, у кого ограниченная подвижность, могут выбрать более высокий унитаз, который требует меньшего наклона. Еще один способ повысить безопасность туалета — приподнять сиденье. Вы можете увидеть, о чем я говорю, в нашей статье о мерах безопасности в ванной для людей с ограниченными физическими возможностями. С другой стороны, те, у кого есть дети, могут предпочесть более короткий туалет, которым легче пользоваться маленьким детям.![]()
При этом высота унитаза может быть примерно разделена на стандартную высоту и высоту стула:
- Туалет стандартной высоты – Низкопрофильная конструкция с максимальной высотой сиденья унитаза 17 дюймов, обычно около 15 дюймов.
- Унитаз с высотой стула – Конструкция с большим профилем и сиденьем для унитаза примерно на высоте сиденья стула, около 19 дюймов.
Другой вариант – унитаз нестандартной высоты. Обычно они настенные, так как их легче регулировать по высоте, чем цельные или двухкомпонентные конструкции.
Большинство подвесных унитазов могут быть установлены на любом расстоянии от 15 до 30 дюймов, чтобы вместить людей всех размеров и предпочтений.
3.Форма чаши
Источник: FaucetDepot.com
Форма чаши — еще один фактор дизайна, влияющий на размеры и удобство унитаза.
Иногда можно выбрать унитаз по индивидуальному заказу с конкретными размерами, которые наилучшим образом соответствуют вашим личным потребностям и предпочтениям.
Однако чаще всего выбирают одну из трех основных форм чаши, каждая из которых имеет диапазон размеров.
Наиболее распространенные формы унитазов: вытянутые, компактные вытянутые и круглые спереди.
а. Удлиненный унитаз
Удлиненные унитазы имеют примерно овальную форму. Их ключевое преимущество — дополнительная длина. Большинство из них примерно на 2 дюйма длиннее круглой чаши, всего около 18 дюймов. Дополнительная длина делает сиденье для унитаза более удобным и просторным.
б. Круглый передний унитаз
Унитазы с круглым фасадом имеют примерно круглую форму. Хотя они не такие большие и удобные, как удлиненные миски, они занимают меньше места. Они являются хорошим вариантом для небольшой ванной комнаты, где пространство в большом почете.
в. Компактный удлиненный унитаз
Компактный удлиненный унитаз представляет собой сочетание удлиненной чаши и круглой передней чаши. У них такая же круглая форма, как и у чаши с круглой передней частью, с дополнительным пространством для сидения, как у удлиненной чаши.
4. Сиденье для унитаза
Источник: Обзоры товаров для ванных комнат и статьи
Большинство раздельных унитазов поставляются без сиденья, поэтому его необходимо покупать отдельно.
Даже у цельных унитазов, которые поставляются с сиденьем, обычно есть съемное сиденье, которое вы можете заменить на то, которое лучше соответствует вашим потребностям и предпочтениям.
В дополнение к покупке сиденья для унитаза, которое соответствует цвету вашего унитаза и дополняет декор вашей ванной комнаты, важно найти сиденье, которое соответствует форме вашего унитаза (удлиненной, круглой или компактной удлиненной).
У вас также есть выбор из нескольких материалов сиденья унитаза. Наиболее распространенными являются пластик, полипропилен, мягкий винил, формованная композитная древесина и натуральное дерево.
Семьи с маленькими детьми могут выбрать сиденье для унитаза с медленным закрыванием.Они повышают безопасность, предотвращая удары.
Отсутствие хлопков также означает, что они тихие.
Роскошные сиденья для унитаза включают поверхности с подогревом и дезодоранты. Еще одним популярным вариантом является биде (более подробно обсуждается ниже) с струей теплой воды и осушителем теплого воздуха.
5. Трап
Источник: Туалет найден!
Сифон — очень важный компонент унитаза, соединяющий чашу унитаза с водопроводом в вашем доме.
Качественный сифон обеспечивает редкое засорение (если оно вообще существует).Он обеспечивает бесперебойную работу вашего туалета, так что отходы, покидающие ваш дом, без проблем попадают в канализацию.
Все туалеты имеют S-образный сифон, но они доступны в разных стилях. Открытые, скрытые и с юбкой:
а. Открытый туалет с люком
S-образный открытый люк виден сбоку туалета. Колпачки закрывают болты, которыми унитаз крепится к полу.
б. Скрытый трап-туалет
S-образная форма не видна на туалете со скрытым люком.
Вместо этого сторона унитаза представляет собой гладкую поверхность. Низкопрофильные заглушки закрывают болты, которыми унитаз крепится к полу.
в. Туалет с люком с юбкой
S-образная форма не видна на унитазе с люком с бортиком. Хотя этот тип туалета похож на скрытый люк, он имеет одинаковые стороны от основания до унитаза. В этом типе унитаза болты не выставляются.
6. Утопленная ручка
Источник: Женщины, которых вы должны знать
Одним из последних элементов дизайна унитаза, о котором следует подумать, является тип и расположение ручки смыва.Ваши варианты включают боковое расположение, верхнее расположение, расположение на стене, бесконтактное и дистанционное:
- Боковое расположение – Рычаг или кнопка расположены на правой или левой стороне бака.
- Верхнее расположение – Кнопка расположена в верхней части резервуара. В большинстве унитазов с двойным смывом для смыва используются две расположенные сверху кнопки.

- Место на стене — Кнопка расположена на стене. Обычно они используются только для подвесных унитазов.
- Бесконтактный – Датчик движения устанавливается на унитаз (обычно сверху на бачок).Помашите рукой перед ним, чтобы смыть.
- Пульт дистанционного управления – Смойте унитаз нажатием кнопки на панели управления с сенсорным экраном или на пульте дистанционного управления.
E. Анатомия туалета (схема)
Подробное описание частей унитаза см. здесь.
F. Дополнительные функции/опции
Все еще не доволен своим унитазом в ванной?
Если вы хотите, чтобы что-то выделялось из толпы, подумайте об умном унитазе, экологичном унитазе или даже писсуаре.
В дополнение к этим дополнительным функциям унитаза одним из наиболее распространенных дополнительных элементов унитаза является биде.
1. Умный туалет
Источник: Houzz
Интеллектуальные туалеты отличаются инновационным дизайном, который меняет представление о том, что такое туалет и на что он способен.
Большинство интеллектуальных туалетов оснащены панелью управления с сенсорным экраном или пультом дистанционного управления, который позволяет изменять температуру сиденья унитаза, спускать воду в самом унитазе и многое другое.
Большинство интеллектуальных унитазов оснащены биде для мытья теплой водой. Управление с помощью сенсорного экрана также позволяет по желанию управлять настройками очистки.
Наконец, интеллектуальные туалеты чаще всего имеют обтекаемый дизайн. Бак обычно прячут, чтобы создать более изысканный вид.
2. Экологичный туалет
Источник: Inhabitat.
com
Экологичные туалеты завоевывают популярность в Северной Америке и во всем мире.
Частично причина в законах, которые ограничивают количество воды, используемой туалетом для смыва. В Соединенных Штатах только что установленные туалеты должны использовать менее 1,6 галлона воды на один смыв.
Если вы хотите поднять эффективность использования воды на новый уровень, подумайте о покупке специального экологичного туалета, который использует еще меньше воды.
3. Писсуар
Источник: Список Энджи
Писсуары настенные, используемые для жидких отходов.
Хотя они чаще всего используются в коммерческих целях, некоторые производители бытовых туалетов продают их для домашнего использования.
4. Биде
Источник: Houzz
Давно популярные в других странах мира, немногие туалетные принадлежности завоевывают популярность так же быстро, как биде в Северной Америке.
Короче говоря, биде — это сантехническое приспособление, предназначенное для того, чтобы помогать вам «убираться» после посещения туалета в дополнение к туалетной бумаге (или вместо туалетной бумаги).
Вы можете установить биде рядом с унитазом или выбрать дополнительную модель, встроенную в унитаз.
Накладные биде популярны среди интеллектуальных унитазов. Обычно они сочетают форсунки для очистки холодной и теплой водой с осушителями.
II. Часто задаваемые вопросы
Ниже приведены ответы на распространенные вопросы о туалетах.
Туалеты стандартного размера? Если да, то какой стандартный размер? Из-за того, что существует множество различных типов туалетов, единого стандартного размера не существует. Вместо этого существует ряд размеров, вокруг которых построено большинство стандартных туалетов.Общая высота большинства цельных самотечных туалетов может варьироваться от 21 до 31 дюйма с расстоянием от края чаши до пола от 14 до 16 дюймов. Глубина большинства туалетов находится в диапазоне от 27 до 30 дюймов, а ширина почти никогда не превышает 20 дюймов. Двухкомпонентные унитазы с отдельными резервуарами для воды и чашами в конечном итоге не будут такими низкими, как цельные унитазы, поэтому их общая высота может варьироваться от 26 до 32 дюймов.
Хотя в большинстве туалетов нет встроенного механизма для самостоятельного смыва, отдельные лица могут приобрести туалет с автоматическим смывом.Некоторые общественные туалеты будут оснащены самосмывающимися писсуарами и туалетами. Обычно они устанавливаются для экономии воды, поскольку они смываются только после определенного момента, и они предназначены для контроля количества воды, которое они используют во время самого смыва. Другие туалеты работают со смывным механизмом. Если туалет человека смывается сам по себе, когда нет автоматической системы, предназначенной для этого, это означает, что с туалетом возникла более серьезная проблема, которую должен решить профессионал.
Можно ли перемещать туалеты? Хотя туалеты можно перемещать, обычно этого делать не рекомендуется. Люди, пытающиеся передвинуть туалеты без профессиональной помощи, могут повредить свои трубы или материал самого туалета.
Туалеты очень тяжелые, и их трудно отсоединить от водопроводной системы внизу. Однако лица, имеющие доступ к своему подполью, могут свести к минимуму затраты на ремонт и демонтаж, внеся необходимые коррективы в свою горизонтальную канализационную линию.Для тех, кто не имеет большого опыта работы с сантехникой, настоятельно рекомендуется проконсультироваться с профессионалом. Даже если стоимость может быть высокой, если туалет не будет удален правильно, повреждение водопроводной системы дома может привести к еще большим затратам в будущем.
Туалеты можно повторно остеклить, и сам процесс довольно прост и понятен. Люди могут выбрать повторное остекление своих туалетов, если они заметят небольшое обесцвечивание или поверхностное повреждение на внешней стороне, которое можно устранить с помощью повторного остекления.Для начала люди должны отшлифовать наружную часть своего унитаза наждачной бумагой с зернистостью не менее 80, чтобы избавиться от старой краски и создать более гладкую поверхность.
После этого удалите наждачную бумагу и остатки липкой тканью. После этого нанесите слой грунтовки с помощью поролонового валика. Когда закончите, дайте грунтовке высохнуть в течение 24 часов. После высыхания нанесите еще один слой масляной краски поролоновым валиком и дайте ему высохнуть в течение 24 часов.
Если туалеты не чистятся регулярно, вполне вероятно, что они заплесневеют и обрастут органическими веществами.Из-за постоянного присутствия воды и отсутствия света унитазы и баки создают идеальную среду для роста черной плесени. Черная плесень может стать серьезной проблемой в ванной комнате, так как она может распространиться и на другие предметы, например на стены и потолок. Лучший способ борьбы с плесенью в туалете — содержать его в чистоте. Убедитесь, что вы чистите свой туалет хотя бы раз в неделю. Подумайте о том, чтобы установить в ванной какую-либо систему фильтрации воздуха, которая также поможет вам поддерживать чистоту воздуха.
Самый первый пример современного унитаза со сливом был найден еще в 1596 году. Он был разработан сэром Джоном Харингтоном, который был английским придворным. Будучи крестником королевы Елизаветы I, он имел больше возможностей поделиться своим изобретением с миром. Первая модель Харингтона имела овальную чашу глубиной два фута. Он был водонепроницаемым с помощью смолы, воска и смолы, а вода подавалась из цистерны наверху. Для промывки требовалось семь с половиной галлонов воды, что в то время было относительно большим объемом.Только когда позже были сделаны механические усовершенствования, устройство стало более широко использоваться.
Как долго служат туалеты? Туалеты рассчитаны на всю жизнь. В среднем люди могут рассчитывать на то, что их туалет прослужит более 50 лет. Если унитаз держится все время, возможно, его никогда не придется заменять. Однако, как и в случае с любым другим структурно крупным элементом, для людей жизненно важно планировать замену, когда они начинают замечать очевидные признаки износа и повреждения.
Одна из первых вещей, на которые следует обратить внимание, — это утечка. Утечки могут свидетельствовать о том, что что-то не так с трубами или самим материалом. Когда большие структурные проблемы начинают проявляться, возможно, пришло время заменить все приспособление.
Туалеты могут быть переработаны, и нередко многие старые туалеты перепрофилируются для использования в будущем. Туалеты обычно собирают специализированные специалисты, и в процессе переработки проверяется целостность туалета, чтобы убедиться, что он сможет выдержать необходимую нагрузку в будущем.Любые проблемы, которые могут возникнуть в туалете, исправляются до желаемого стандарта эффективности, чтобы обеспечить людям как можно более долгосрочную службу. Туалет также приведен в соответствие с эстетическими и структурными стандартами.
Из чего сделаны туалеты? Унитазы долгое время изготавливались из фарфора. Несмотря на то, что это относительно простой материал для создания такого приспособления, у туалетов из фарфора есть множество преимуществ.
Начнем с того, что фарфор не является пористым, а это означает, что бактериям будет трудно размножаться внутри самой конструкции унитаза. Фарфор очень гладкий и легко чистится, он не подвержен длительной коррозии, что очень важно, так как он часто контактирует с водой и чистящими химикатами.
Покраска унитаза вполне возможна, хотя люди должны быть уверены, что спланируют это соответствующим образом, чтобы получить максимальную отдачу от своего приспособления.Перед покраской очень важно максимально очистить унитаз. Соединения с водой нужно будет отключить, а на поверхности не должно быть никаких загрязнений. Оттуда это простой процесс следования стандартному протоколу рисования, чтобы убедиться, что вы получите желаемые визуальные результаты. Все типы краски могут хорошо сочетаться с проектом туалета.
Есть ли электрические туалеты? Электрические туалеты существуют уже некоторое время, и они легко доступны в качестве альтернативы водяным туалетам, чтобы помочь людям сэкономить на их долгосрочном использовании воды.
Эти туалеты основаны на системе электроснабжения и имеют один из самых сильных смывов в отрасли. Из-за характера туалетов они также могут иметь ряд различных удобств для пользователей, таких как сиденья с подогревом и обтекаемый дизайн.
III. Подробнее
Вот некоторые другие важные факторы, которые следует учитывать при покупке унитаза.
A. Установка унитаза
Сложность установки унитаза во многом зависит от типа унитаза, который вы покупаете.
Хотя это не очень сложный проект своими руками, установку унитаза лучше доверить тем, у кого есть хоть какой-то опыт в рукоделии. Если вы не умеете работать, нет причин не вызывать профессионала для выполнения этой работы.
Цельные унитазы обычно немного проще в установке, чем унитазы, состоящие из двух частей. Тем не менее, двухсекционные туалеты могут быть эффективно установлены теми, у кого есть небольшой опыт.
Подвесные туалеты — это тот тип, для установки которого вам почти всегда следует нанимать профессионального подрядчика.
Эти туалеты обычно включают в себя бачок в стене, поэтому процесс установки намного сложнее, чем простое подключение унитаза к водопроводу.
Естественно, сложность установки унитаза также зависит от того, заменяете ли вы унитаз, ремонтируете ванную комнату или строите новую ванную комнату с нуля.
B. Комната и расположение
При покупке и установке унитаза в ванной комнате необходимо помнить о планировании пространства.
Подумайте, как будет выглядеть ваш унитаз и другая сантехника, когда они будут установлены. В частности, подумайте, сколько места останется в ванной после установки.
Wayfair рекомендует оставлять около 21 дюйма свободного пространства перед унитазом. Они также рекомендуют оставлять 15 дюймов от центра унитаза с каждой стороны перед стеной или другим приспособлением.
Помимо планирования пространства, важно продумать расположение туалета в вашей ванной комнате.Будет ли он по-прежнему хорошо выглядеть в этом месте после установки других сантехнических приборов, таких как раковина, туалетный столик и ванная/душ?
В том же духе вы должны учитывать не только стиль вашего унитаза как отдельного прибора, но и то, как его дизайн сочетается с остальным декором вашей ванной комнаты в целом.
Все более популярным вариантом становится покупка унитаза в составе коллекции для ванной комнаты. Это гарантирует, что вся ваша сантехника, сантехника и декор будут сочетаться друг с другом.
Коллекции для ванных комнатдоступны в различных стилях и цветах, от традиционного до деревенского и от современного до современного.
C. Другие факторы, которые следует учитывать
Есть несколько дополнительных вопросов, которые вы можете задать себе, чтобы выбрать лучший туалет для вашего дома и семьи.
Эти вопросы включают:
- Кто будет пользоваться туалетом? Если туалетом будет пользоваться человек с ограниченными физическими возможностями, унитаз с более высоким стулом значительно облегчит переход из положения стоя в положение сидя и из положения сидя в положение стоя.
- Где находится ванная комната? Ваш новый туалет входит в основную ванную, гостевую или детскую?
Многие люди тратят больше денег на туалет в основной ванной, чем на туалет в гостевой.
Подумайте о том, чтобы выбрать детский туалет меньшего размера для ванной комнаты вашего ребенка.
- На что похож проект установки? Вы просто заменяете старый туалет новым, переделываете ванную комнату или строите новый дом с нуля?
Замена унитаза часто требует покупки унитаза примерно такого же размера.Это позволяет избежать щелей от сантехники на полу.
D. Стоимость и бюджет
Стоимость вашего туалета зависит от множества факторов.
Главным из них является конкретный тип туалета, который вы покупаете. Однокомпонентные туалеты немного дешевле, чем двухкомпонентные. Настенные унитазы, как правило, немного дороже, чем унитазы, состоящие из двух частей.
Учитывайте любые дополнительные функции, которые вы хотите иметь в своем унитазе. Туалеты с подогревом сидений или биде будут стоить дороже, чем без них.
А еще есть общий стиль вашего туалета. Существует большой разрыв в цене между бюджетными туалетами и туалетами класса люкс.
Наконец, вы должны учитывать установку в уравнении. Если вы справитесь с работой самостоятельно, вы сэкономите много денег на установке унитаза. Наем профессионала для работы, естественно, будет стоить намного дороже.
HomeAdvisor сообщает, что средняя стоимость установки нового унитаза составляет 376 долларов. Далее они заявляют, что большинство домовладельцев потратили от 223 до 538 долларов на установку нового туалета в 2017 году.
Конечно, есть выбросы. Согласно исследованию HomeAdvisor, некоторые домовладельцы потратили всего 120 долларов на установку нового туалета, в то время как другие потратили более 857 долларов.
ImproveNet дает немного другую цифру: 355 долларов США в качестве средней стоимости установки нового туалета в 2017 году.
IV. Где купить туалеты онлайн
Теперь, когда вы точно знаете, что искать в туалете, вы, вероятно, захотите узнать, где лучше всего купить его в Интернете.
Мы рекомендуем наиболее авторитетным интернет-магазинам туалетов для ванных комнат:
Связанный: Типы держателей для туалетной бумаги
Розыгрыши домашней стратосферы.
Примите участие в розыгрыше Мелкая бытовая техника
Лучшие мелкие бытовые приборы включают блендер Vitamix, кастрюлю быстрого приготовления, соковыжималку, кухонный комбайн, настольный миксер и кофеварку Keurig.
Бесплатные раскраски и книги для детей
Бесплатно скачать и распечатать.
Загрузите тысячи пользовательских раскрасок и головоломок для своих детей.
Получите БЕСПЛАТНЫЙ 3D-инструмент для проектирования ванной комнаты!
Попробуйте нашу замечательную программу для проектирования ванных комнат, которую вы можете использовать полностью онлайн, а затем загрузите свои творения.
Туалетный столик для ванной в фермерском доме своими руками — Shanty 2 Chic
- Фейсбук
- Твиттер
- Пинтерест
Узнайте, как собрать туалетный столик для ванной комнаты в фермерском доме своими руками, воспользовавшись бесплатными чертежами от Shanty2Chic! Это простая сборка, для которой требуется всего несколько инструментов!
Работа над этой комнатой длилась дольше, чем мне хотелось бы признать, но я, наконец, добрался до ее завершения, и мне ОЧЕНЬ ПОНРАВИЛСЯ РЕЗУЛЬТАТ! Посмотрите на новую ванную комнату моего старшего сына и его новый туалетный столик в фермерском доме!
Как всегда, я поделюсь с вами всей сборкой здесь, и вы можете загрузить и распечатать наши бесплатные планы, нажав ЗДЕСЬ!
Теперь строить туалетный столик! На самом деле это не сложная сборка.
..Если вы можете уменьшить угол, остальное очень просто.
Тумба для ванной в фермерском доме своими руками
Я начал с двух сторон. Они изготовлены из 3/4-дюймовой фанеры Purebond. Этот тип фанеры продается в больших листах размером 4 на 8 футов, и у нас есть ребята из Home Depot, которые разрезают ее на более мелкие доски, чтобы поместиться в машине. Затем мы обрезаем эти доски до нужного размера с помощью торцовочных пил или настольных пил. Я обрезал свой по размеру, а затем добавил 3/4-дюймовые карманные отверстия по бокам и сверху.Верхние карманные отверстия будут использоваться для крепления деревянной столешницы. Если вы делаете просто врезку в столешницу/раковину без дерева под ней, вы можете пропустить эти карманные отверстия.
Далее я вырезал и прикрепил ножки. Они сделаны из досок 2х3. Вместо того, чтобы просто покупать 2 × 3, мы предпочитаем покупать 2 × 4 и обрезать закругленные края, чтобы сделать его очень квадратным 2 × 3. Вы делаете это, пропуская каждый конец через настольную пилу.
Мне нравится внешний вид!
После прикрепления обеих ножек я добавил X-образные детали отделки.Для этой части я использовал доски толщиной 1/2″. Обычно их можно найти в хозяйственном магазине за сосновыми досками. Я использовал сосну для этой части, а также. Я обнаружил, что самый простой способ получить эти углы — положить доску на тумбу и нарисовать, где должны проходить разрезы.
Я прикрепил каждую доску с помощью гвоздезабивного пистолета Ryobi 18v с гвоздями 3/4″ и столярным клеем под каждой доской.
После изготовления обеих сторон я прикрепил к ним переднюю и заднюю части рамы.Они также будут прикреплены с помощью карманных отверстий 3/4″ и винтов с карманными отверстиями 1,25″.
Основание туалетного столика также Purebond. Я добавил 3/4-дюймовые карманные отверстия вокруг основания всего этого перед тем, как прикрепить его к внутренней части шкафа.
Вот она готова к своей двери!
В этой части я обрезал части двери по размеру, а затем добавил 3/4-дюймовые карманные отверстия на обоих концах каждой более короткой доски.
Затем я сделал раму из этих 4 досок, используя 1.25-дюймовые саморезы.
Основа — фанера Purebond толщиной 1/4″. Я прикрепил его с помощью столярного клея и 3/4-дюймовых скоб с помощью своего степлера Ryobi 18g.
Затем я добавил деталь X, используя тот же метод, что и по бокам, отметив места разрезов.
Теперь наверх! Опять же, у вас может быть просто капля сверху, похожая на то, что я использовал на своем последнем туалетном столике. Если это так, вам не понадобится деревянная столешница, которую я собираюсь вам показать. Я построил свой, начав с куска фанеры Purebond толщиной 3/4″, вырезав размер столешницы, который я хотел, минус 1.25″ по кругу.
Затем я обшил верх дубовыми досками 1/2″x 4″. Я использовал столярный клей и гвозди, чтобы закрепить их на месте.
Снаружи столешницу обшил дубовыми досками 1х2.
Затем я положил шаблон раковины сверху и с помощью электролобзика Ryobi прорезал линию раковины.
Чтобы сделать это, я начал с того, что сделал пилотное отверстие своей дрелью. Это позволит мне опустить в нее лезвие лобзика, чтобы начать рез.
Это лезвие, которое я использовал…
Затем я просто обрезал линию.
Затем я убедился, что он подходит!
Я покрасил столешницу морилкой Varathane Dark Walnut.
После высыхания я добавил два слоя Varathane Triple Thick Poly.
Здесь написано ГЛЯНЦЕВАЯ, НО Я использовал атласную!
Я покрасил весь шкаф краской Varathane Chalked оттенка Charcoal, а затем слегка отшлифовал края, чтобы немного состарить их. Я также нанес один слой Triple Thick на основание шкафа.
Это петли, на которые я крепил дверь.Они из Home Depot.
А это я использовал для дверной защелки, тоже от Depot!
Вот и все!
Насколько красив этот кран, ребята? Я работал с Моеном на финише из этого пространства.
Смеситель представляет собой однорычажный смеситель для ванной комнаты Weymouth Oil Rubbed Bronze.
У меня также было много вопросов о рычаге бака. Это также рычаг бака Moen Weymouth из бронзы, натертой маслом.
Держатель бумаги Weymouth изменил правила игры в моем доме.Этот дизайн восхитителен! Это значительно упрощает замену рулона туалетной бумаги… Это мелочи 😉
Над этой деталью я работал с одним из наших любимых брендов. Я нашла всю плитку для ванной в The Tile Shop! Ниже я дам ссылку на каждую плитку, чтобы вы могли найти ее на их сайте.
Мраморная плитка для метро с подушками
Мраморная отделка
Напольная плитка Adoni Black Slate Paragraph
А теперь остальные вкусности! Эта тумба предназначена для врезной раковины.Я нашел свой на Wayfair. Я хотел что-то, что покрывало бы большую часть столешницы, чтобы мой сын не попадал слишком много воды на дерево.
ВОТ найденная мной раковина.
Удивительное зеркало и свет тоже от Wayfair.
Смеситель для душа также входит в коллекцию Weymouth.
Настенное зеркало
ЛЮБЛЮ свет и его цену!
Светильник Progress Light Archie Light
Я также нашел его занавеску для душа и карниз на Wayfair!
Фу.Это был полный рот. 🙂 Надеюсь, вам понравится так же, как и нам!
Дайте мне знать, если у вас возникнут вопросы!
- Фейсбук
- Твиттер
- Пинтерест
Современный туалетный столик для ванной в фермерском доме своими руками
- Фейсбук
- Твиттер
- Пинтерест
Мы искали новую раковину для ванной комнаты в нашем новом офисе.
После поиска и A. не найдя того, что мы действительно хотели, и B. увидев цены на туалетные столики, которые нам не очень нравились, мы решили, что лучше всего сделать один! Изготовление туалетного столика может показаться пугающим, НО если вы можете построить коробку, то вы сможете построить и этот туалетный столик! Итак, давайте построим новый туалетный столик для ванной в современном фермерском доме своими руками!
Туалетный столик своими руками
Эта сборка была не только простой, но и более доступной, чем все, что мы могли найти в магазинах, И еще более милой!
Итак, строим! Возьмите чашку кофе и нажмите ЗДЕСЬ или поле ниже, чтобы посмотреть, как мы создаем это тщеславие!
Супер просто и доступно, правда?! Обязательно загрузите БЕСПЛАТНЫЕ планы для печати ЗДЕСЬ, и вы также можете следовать пошаговым инструкциям ниже!
Первый шаг — оторвать круглые края досок 2×4, чтобы сделать их шириной 3″.
Это необязательный шаг, но если вы решите не разрывать доски, обязательно отрегулируйте размеры. Вы можете посмотреть наше видео с практическими рекомендациями по этому процессу ЗДЕСЬ!
Мы разрезали фанеру и ножки, чтобы создать боковые панели, и использовали наш приспособление Kreg, чтобы просверлить карманные отверстия 3/4″ в каждой стороне фанеры. Вы можете найти нашу любимую модель Kreg Jig ЗДЕСЬ!
Затем мы прикрепили ножки к каждой стороне с помощью шурупов с потайными отверстиями 1 1/4 дюйма и столярного клея. Верхняя часть ножек должна быть на одном уровне с верхней частью фанеры, и должен быть зазор 3/4″ на передней части панелей и зазор 1 1/2″ на задней.Соберите две сборки. Совет: положите 1 кусок доски под каждую панель, чтобы получить зазор 3/4″, необходимый спереди.
Далее измерили и обрезали верх и низ, обшивку боковой панели по размеру. Мы перевернули боковые панели правой стороной вверх и прикрепили детали отделки к передней части боковых панелей с помощью нашего 18-вольтового гвоздезабивного пистолета Ryobi 18 калибра с 1 1/4-дюймовыми гвоздями и столярным клеем.
Вы можете найти нашего любимого Брэда Нейлера ЗДЕСЬ!
Собрав обе боковые панели, мы перешли к их соединению.Мы обрезали передний и задний фартуки по размеру и просверлили карманные отверстия 3/4″ на задних фартуках и 1 1/2″ карманные отверстия на передних фартуках. Затем мы прикрепили фартуки к ножкам с помощью 3/4″ и 1 1/2″ шурупов и столярного клея. Обратитесь к планам правильного размещения фартуков на ногах.
Мы обрезали детали нижней опоры по размеру и просверлили карманные отверстия 1 1/2″ в концах, которые крепятся к переднему фартуку. Затем мы просверлили карманные отверстия 3/4 дюйма на других концах. Мы прикрепили опоры к фартукам с помощью шурупов с потайными отверстиями 1 1/4″ и 2 1/2″ и столярного клея.
Затем мы нарезали фанеру для нижней части туалетного столика, нанесли столярный клей на верхнюю часть нижних опорных элементов и уложили фанеру поверх опор. Мы использовали наш Ryobi 18 Gauge Brad Nailer с 1 1/4-дюймовыми гвоздями, чтобы прикрепить фанеру к опорам.
Мы обрезали средние опорные части по размеру и просверлили карманные отверстия 3/4″ на обоих концах. Мы расположили их по центру фартуков и прикрепили их к фартукам с помощью винтов с потайными отверстиями 1 1/4 дюйма и столярного клея. См. чертежи для точного размещения средних опорных элементов.
Примечание. Если вы решите поставить спинку на туалетный столик, самое время ее прикрепить. Отрежьте 1/4-дюймовую фанеру по размеру и прикрепите ее к заднему фартуку и заднему разделителю с помощью 3/4-дюймовых скоб и столярного клея. Мы решили не добавлять заднюю часть из-за конструкции труб в нашей ванной. Если у вас есть задняя часть, вы можете использовать лобзик, чтобы вырезать заднюю часть для труб.
Теперь о дверях!
Мы вырезаем 1/2-дюймовую фанеру, а также верхнюю и нижнюю доски для рукоделия по размеру.Затем мы прикрепили их к фанере с помощью 5/8-дюймовых гвоздей и столярного клея. Затем мы добавили диагональные элементы отделки и прикрепили их таким же образом.
Мы покрасили все в два слоя, прикрепили фурнитуру и столешницу! Если вас не устраивает сантехника, вы можете нанять сантехника или разнорабочего, чтобы он прикрепил трубы к раковине. Мы установили защелки шкафа, чтобы двери шкафа были закрыты. Вы можете найти их здесь!
Мы разработали эту тумбу так, чтобы она соответствовала этой столешнице! Вы можете найти верхнюю часть тщеславия, которую мы купили ЗДЕСЬ!
Нам нравятся четкие линии, деревенская фурнитура и белоснежная столешница!
Это именно тот туалетный столик, о котором мы мечтали, но не могли найти в магазинах! Мы смогли сэкономить деньги и получить именно то, что мы хотели!
Ниже вы можете найти все, что мы использовали для изготовления туалетного столика своими руками!
Кран
Туалетный столик
Держатель туалетной бумаги
Держатель полотенец для рук
Зеркало
Защелки шкафа
Петли
Застежка на крючок и проушину – Hobby Lobby
Ручки – Hobby Lobby
Ковер
Обязательно поделитесь с нами своими постройками в социальных сетях и используйте хэштег #shanty2chic, чтобы мы тоже могли ими поделиться!
Счастливого строительства!
- Фейсбук
- Твиттер
- Пинтерест

Учитывайте размеры внутреннего помещения уборной. Минимально допустимая площадь – 1 х 1 м. Если сэкономить и сделать кабинку меньше, пользоваться ей будет неудобно. Также особое внимание стоит уделить выбору дачного унитаза.


Затем основа ошивается листами металла. Данный материал также покрывается специальным составом, которое защищает дачный туалет от отрицательного воздействия повышенной влажности. Основное преимущество использования профнастила – возможность быстрого сооружения;
Если владелец не желает портить натуральный вид дерева, то существуют многочисленные прозрачные составы, которые отталкивают влагу.
к. герметичная система не приводит к загрязнению окружающей среды;
html: использовано 6 блоков из 9, кол-во символов 7258 (20%)

Глубина зависит от наличия грунтовых вод. Но и стараться вырыть яму на 5 метров – это несколько глупо. Ведь дача посещается сезонно и использовать туалет по назначению придётся не так часто, как в условиях частного дома.
Это будет основанием, на которое будет ставиться сама конструкция туалета. Для кирпичного варианта лучше залить плиту с надёжным стальным каркасом внутри. Для лёгких конструкций можно обойтись железными балками или деревянным брусом. Но их следует тщательно обработать – агрессивная среда быстро «сожрёт» их.
В прежние времена 32-дюймовые туалетные столики были нормой, предназначенной для размещения как детей, так и взрослых. В настоящее время стандартная практика заключается в том, чтобы настраивать их так, чтобы они были удобными для взрослых пользователей. из механизма, встроенного в тщеславие.
Расстояние от осевой линии унитаза до ближайшей стены или препятствия должно быть не менее 18 дюймов. Минимальное расстояние в 15 дюймов используйте только в том случае, если у вас очень маленькая ванная комната и вы не можете разместить дополнительное расстояние.
Этот код относится к другим приспособлениям рядом с унитазом, например к биде.